ブランニード八尾桜ケ丘一丁目 1303号室 家具付きモデルルーム分譲
創業から50年以上、幸せはこぶ住まいづくりをモットーに、数多くの住まいづくりに取り組んで参りました。
今回ご紹介するのは、快適な暮らしを叶える間取りや、ワンランク上の住み心地を実現する設備・仕様を採用したモデルルーム。
プロのインテリアコーディネーターが提案したコーディネート家具・エアコン・カーテン付きで分譲中です!
ブランニード八尾桜ケ丘一丁目 1303号室モデルルーム(Fタイプ標準)
― 販売価格 4800万円 ―
※掲載の情報は2025年11月時点のものです。
※先着順の為、ご成約済みの場合がございます。
今回ご紹介するのは、快適な暮らしを叶える間取りや、ワンランク上の住み心地を実現する設備・仕様を採用したモデルルーム。
プロのインテリアコーディネーターが提案したコーディネート家具・エアコン・カーテン付きで分譲中です!
ブランニード八尾桜ケ丘一丁目 1303号室モデルルーム(Fタイプ標準)
― 販売価格 4800万円 ―
※掲載の情報は2025年11月時点のものです。
※先着順の為、ご成約済みの場合がございます。
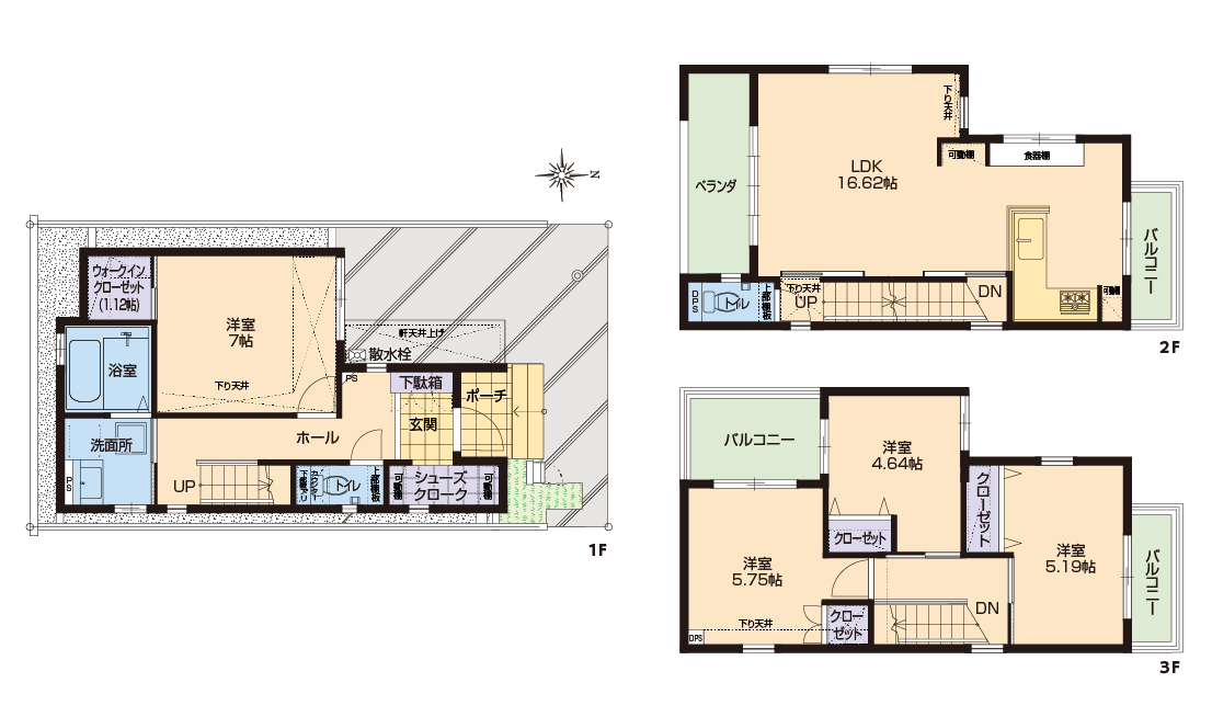
こだわりの間取りポイントをご紹介
ブランニード八尾桜ケ丘一丁目 1303号室(Fタイプ標準)モデルルーム
住居専有面積/65.10㎡(19.69坪)
バルコニー面積/11.05㎡(3.34坪) アルコーブ面積/4.28㎡(1.29坪)


南向きバルコニーから陽光差し込む明るい住空間。LDK横の洋室もバルコニーと面した南向き採光です。
温もり感じるナチュラルテイストの家具付き分譲です。

温もり感じるナチュラルテイストの家具付き分譲です。

南向きバルコニーから陽光差し込む明るい住空間。
LDK横の洋室もバルコニーと面した南向き採光です。
■南向きに開放感のある縦長リビング
リビングダイニングを一望できる対面式見守りキッチンが魅力的。
広い壁面を利用したピクチャーレールで、自分だけの住空間にカスタマイズできます。
隣り合う洋室も南向きに開口部があり明るく居心地よい空間に。
■LDKから洋室、洗面化粧室につながる回遊動線
LDKから直接洗面化粧室につながるので、
洗濯物や朝の身支度の際に廊下に出る必要がない時短動線です。
LDKとつながる洋室は、お子さまの居場所やワークスペース等におすすめ。
暮らしを豊かにするオススメの設備・仕様をご紹介


バルコニー側にあるLDKと洋室、玄関側にある洋室。
アウトポール設計で家具レイアウトの幅が広がります。

バルコニー側も、玄関側もアウトポール設計のマンションです。

お部屋の角を活用でき、家具レイアウトの幅が広がります。
■アウトポール設計
お部屋の角に柱が無く、家具レイアウトの自由度が高い間取りです。
圧迫感が減り、数字以上の開放感を感じられる住空間に。
■炭のマンション
24時間空気がきれいな炭のマンション。
湿度、温度を調整する全熱交換システム。
空気にこだわったフジ住宅ならではの設備です。
他にも、暮らしを豊かにする
オススメ設備や仕様も盛り沢山
▼ ▼ ▼ ▼ ▼ ▼ ▼ ▼
<機能>快適な暮らしを叶える設備・仕様
-
・生ごみの処理が快適に行えるディスポ―ザ搭載 ・24時間部屋中の空気がきれい【炭のマンション/ピュアエア】 ・省エネに優れ、結露発生を抑える複層ガラス採用 ・暖かく快適なガス温水式床暖房「ヌック」採用 ・家事負担を減らす食器洗浄乾燥機付きキッチン ・荷物を持っていても自動で点灯する人感センサー付きオートライト ・浴室乾燥暖房機付きで冬場も快適な浴室 ・バルコニーには便利なスロップシンクを設置 ・来客を確認できるTVモニター付きオートロックシステム ・玄関インターンホン前の全体が映るワイドカメラ ・ハンズフリーで玄関ドアを施錠、開錠できるTebraシステム ・ピッキングに強く、防犯性を高めたディンプルキー
<意匠>気分が上がるオシャレな設備・仕様
-
・窓辺を美しくすっきり飾るカーテンボックス ・耐久性が高く、お手入れも簡単な人造大理石天板のキッチン ・空間がスッキリするダウンライト ・手洗いができるトイレカウンタ―付き ・洗練された空間を演出するリビング片引き戸 ・壁面を飾ることができるピクチャーレールを設置
☑創業50年を超える当社がこだわった、快適な暮らしを叶える間取り
☑ワンランク上の住み心地を実現する設備・仕様
☑プロのインテリアコーディネーターが提案した、コーディネート家具・エアコン・カーテン付き。
========================
ブランニード八尾桜ケ丘一丁目 1303号室(Fタイプ標準)モデルルーム
販売価格 4800万円
========================
☑ワンランク上の住み心地を実現する設備・仕様
☑プロのインテリアコーディネーターが提案した、コーディネート家具・エアコン・カーテン付き。
========================
ブランニード八尾桜ケ丘一丁目 1303号室(Fタイプ標準)モデルルーム
販売価格 4800万円
========================
他にもモデルルーム分譲ならではのメリットが盛り沢山!
◆直接見て、触れて、納得感を持ってご購入いただけます。
◆完成済みの為、引き渡し・入居までに時間がかかりません。などなど・・・
是非お気軽に、 現地モデルルームのご見学にお越しくださいませ 。
※掲載の情報は2025年11月時点のものです。
※掲載の外観写真は、2024年3月に「ブランニード八尾桜ケ丘一丁目」にて撮影されたものです(一部CG加工済)。
※掲載の室内写真は、2024年4月に「ブランニード八尾桜ケ丘一丁目」棟内モデルルーム(Fタイプ・1303号室)にて撮影されたものです(一部CG加工、オプションを含む)。
※モデルルーム販売は、現状有姿となります。現地にて、付帯設備・家具等を係員にお問い合わせ、お確かめ下さい。家電・家具等は商品購入時の保証となります。あらかじめご了承下さい。
※先着順につき、契約済の場合がございます。あらかじめご了承ください。
▼ ご見学ご予約・資料請求はこちら▼
お問い合わせは
0120-00-0022
【24時間受付中】携帯電話からもご利用頂けます。
※フリーダイヤルは9:30~18:15以外は音声案内となります。
お問い合わせは
0120-00-0022
【24時間受付中】携帯電話からもご利用頂けます。
※フリーダイヤルは9:30~18:15以外は音声案内となります。









お問合せ
資料請求![[ 即時確定 ] 見学予約する](/assets/bukken/img/calendar.png)





