MODEL HOUSEモデルハウス
外観完成予想図
モデルハウス
完成披露見学会実施中
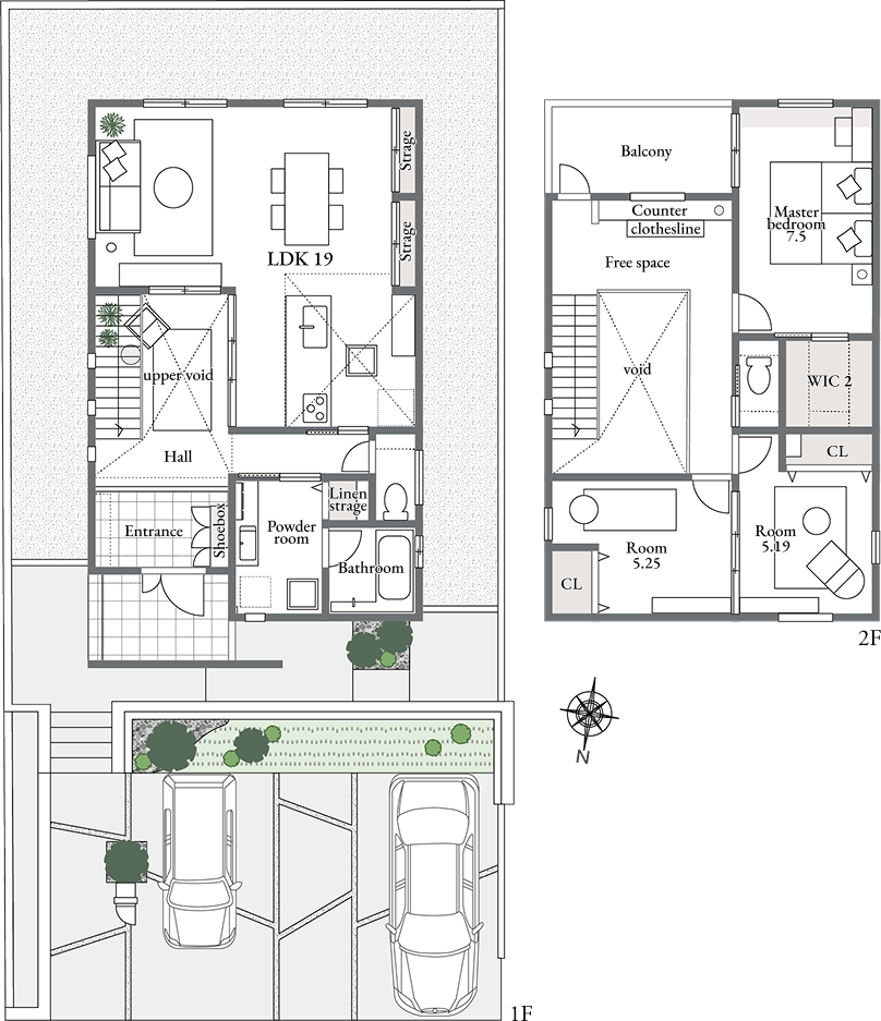
FLOOR PLANフロアプラン
- 余白を愉しむ、大人の暮らし。
エントランスホールとLDKが シームレスに繋がる家
※WIC=ウォークインクローゼット
- 3LDK+WIC
-
土地面積:58.14坪(192.22m2)
延床面積:33.68坪(111.35m2)
1階床面積:18.53坪(61.28m2)
2階床面積:15.14坪(50.07m2)
住まいの顔は、
8.8帖のエントランスホール。
ガラス扉と室内窓が、LDKとのシームレスな繋がりと水平方向の広がりを生み出します。
フロア間を繋ぐシースルー階段と吹き抜けは、垂直方向の抜け感を演出。
ヴィンテージ家具で設えた生活空間や、立体感と意匠が映える外構デザインなど、
大人のこだわりが詰まった住まいです。
本邸は、暮らしを豊かにする山崎実業『tower』シリーズのアイテムを各所に採用した、特別なコラボレーションモデルハウスです。
OPEN ENTRANCE
オープンエントランス
エントランスホールシースルー階段×吹き抜けで、
繋がるフロア
1階のエントランスホールと2階を繋ぐシースルー階段と吹き抜け。垂直方向西線が抜ける設計が、のびやかな心地よさもたらします。
エントランスホール余白時間を堪能する
エントランスホール
静かに佇む黒のラウンジチェアで、余白時間を堪能するエントランスホール。 シースルー階段が映えるのびやかな吹き抜け空間に、ヴィンテージラグの彩りがやわらかな温度を添えます。
VINTAGE LIVING
ヴィンテージリビング
リビングゆとりが愉しいLDK
LDKは、広々とした19帖の大人空間。
室内窓越しにエントランスホールへ視界が抜け、空間に一体感とゆとりを生み出します。
DINING KITCHEN
ダイニング
ダイニング木の温もりに包まれる、
端正なダイニング。
モノトーン基調のシンプルな背景に、無垢のテーブルとチェアが美しく映える空間。ブラックのシャンデリアがほどよい緊張感を添え、上質さと落ち着きを演出します。
キッチン空間の繋がりで
心躍るキッチン
3枚のガラス扉を通してエントランスホールとシームレスに繋がるペニンシュラキッチン。日常の料理時間を、少し特別なひとときへ誘います。デザイン天井は、空間のさりげないアクセントに。
FREE SPACE
フリースペース
フリースペース暮らしに余白を与える
フリースペース
シースルー階段とアイアン手すりが、1階・2階のフロアを越えた一体感を演出。バルコニーに面したカウンターは、 光を感じながら使えるワークスペースに。
MASTER BEDROOM
主寝室
主寝室ローベッドで
ホテルライクな主寝室
低めに設えたツインベッドが空間に安定感をもたらし、落ち着きのある佇まいに。アクセントウォールとアート、コーブ照明が上質な陰影を描きます。ウォークインクローゼット付きで、衣類や季節のアイテムもすっきりと収まります。
クローゼットPHOTO GALLERY写真ギャラリー
空気の質も、贅沢に。
「炭の家」仕様で、深呼吸したくなる毎日を。

冷暖房時の換気による熱のロスを抑えることで、省エネ効果にも。
室内の空気がキレイに保たれ、深呼吸したくなる心地よさが広がります。
- ※ イメージにつき実際とは異なります。
- ※ 地型やプランによっては2Fに炭袋を施工する場合がございます。

※ イメージにつき実際とは異なります。
※ 地型やプランによっては2Fに炭袋を施工する場合がございます。
冷暖房時の換気による熱のロスを抑えることで、省エネ効果にも。
室内の空気がキレイに保たれ、深呼吸したくなる心地よさが広がります。

※ イメージにつき実際とは異なります。
全熱交換システムのしくみ
全熱交換器は換気の際、排気する空気から「熱」と「湿気」を給気する空気に戻します。
冷暖房時の換気による熱のロスが少なくなるので、省エネになります。全熱交換器の仕組みは右図のようになっています。特殊加工された紙でできている全熱交換素子は、排気と給気の空気を混ざり合わせることなく、温度と湿度の交換をします。
-
「フジ住宅の炭の家/ピュアエア」
[第一種換気]
CHECK
「ファンによる強制給気+強制排気」で行うため、室内の圧力が正圧に保たれるため、ホコリなどが侵入しにくく新鮮な空気を確実に供給できるメリットがあります。
-
一般の住宅
[第三種換気]
CHECK
「給気を自然給気+排気を強制排気」で行うため、汚れた外気をそのまま給気することと、室内に隙間風等が入る負圧の状態になりやすいデメリットがあります。
- [正圧]屋外に比べて室内の気圧が高いこと。室内が正圧になると、室内の空気が外へ出て行こうとするため、隙間風等は入り込まない。
- [負圧]屋外に比べて室内の気圧が低いこと。室内が負圧になると、屋外と同じ気圧に保つために、隙間から風が入り込む。
- ※ 換気状況によっては正圧にならない場合がございます。
- ※ 掲載のイラストはイメージです。
目に見えない部分まで、贅沢に。
快適な暮らしを守る住まいの性能
高い断熱性能、遮音性能を備えた快適な住まい。
-
01セルローズファイバー(天井・壁)
「セルローズファイバー」は、繊維が絡み合う厚い空気の層により、グラスウールの約7倍もの遮音性能を有しています。自動車の騒音やテレビの音などを遮り、穏やかな居住空間を実現します。
また、断熱材としては、細かな繊維状のため繊維の中の空気胞が生まれ、これが高い断熱性を実現します。
また吸放湿性のある木質繊維のため、結露抑制効果にも優れています。 -
02Low-E複層ガラス(窓)
「Low-Eガラス」は一般的な1枚ガラスと違い、金属膜をコーティングしたガラスと通常のガラス(網入りの場合もあります)の間に乾燥空気層を確保した複層ガラス。中空層を確保している構造が、まるで魔法瓶のような優れた断熱・気密性を実現しました。夏冬の外気を遮断して、冷暖房効率を上げ、高い省エネ効果を発揮します。
-
03遮熱シート(屋根下地)
屋根下に、輻射熱反射効果で、夏涼しい新素材「遮熱シート」を採用しました。屋根からの太陽熱を戸外に反射して室内の涼しさを守り、家全体の冷房効果を高めます。
-
04基礎断熱(床)
基礎断熱工法は床下空間も室内空間のひとつと考え、基礎立上りの内部に断熱材を施す工法です。
未来にまで続く安心を、贅沢に。
信頼できる耐震・制震×充実のアフターサポート
フジ住宅では、地盤保証制度の導入に加え、
お引き渡し後の定期点検や無償で補修するアフターサービスも充実。
完成後も、長く変わらない支えがすぐそばにある住まいです。
-
耐震 最高等級3
災害時の救護活動の拠点となる消防署・警察署などの建物と同基準。
-
住宅性能評価書
良質の住宅品質を永く保つための住宅性能表示対応商品。
-
地盤の保証
厳格な地盤調査・建物検査で地盤と建物に対する安心をご提供。
-
アフターサービス
お引渡し後、一定期間の不具合を無償で補修する保証体制。
※間取図・外構等は図面を基に描いたイメージにつき、実際とは一部異なる場合があります(2026年3月時点)。※掲載の外観完成予想図は設計図書をもとに描き起こしたもので、実際とは多少異なります。また、官公庁の指導、施工上の都合により外観・仕様・色彩・植栽等に変更が生じる場合があります。あらかじめご了承ください。※間取図の家具の表記はイメージ配置になり、実際とは一部異なる場合があります。※掲載の外観・内観写真は2026年2月に近隣のファンジュ富田林金剛駅3号地モデルハウスにて撮影されたもので、現地の写真ではありません。一部CG加工を施しております。











