※間取図・外構等は図面をもとに描いたイメージにつき、実際とは一部異なる場合があります。家具・車の表記はイメージ配置になり、実際には付きません。(2025年7月時点)
便利で快適な暮らしが叶うフジ住宅の
新築一戸建て「アイーナネオ」
資料請求・見学予約受付中!
新着情報
区画図
※掲載の全体区画図イメージイラストは図面を基に描き起こしたもので、イメージにつき実際とは異なります。また、行政の指導等により変更となる場合がございます。フェンス等は一部省略しております。※駐車台数は車種による制限ありの為、実際に駐車可能かはお客様にて、現地でご確認をお願いいたします。

※掲載の全体区画図イメージイラストは図面を基に描き起こしたもので、イメージにつき実際とは異なります。また、行政の指導等により変更となる場合がございます。フェンス等は一部省略しております。
※駐車台数は車種による制限ありの為実際に駐車可能かはお客様にて、現地でご確認をお願いいたします。


- 限定2区画です!事前資料請求受付開始!
- 駐車2台分のスペースがあります!※車種による
- 収納が考えられた間取りです!
- 洗濯物+αのスペースになるインナーバルコニー!
- 南海本線「北助松」駅徒歩8分、南海本線急行停車「泉大津」駅自転車7分(1820m)
- スーパー、コンビニ、ドラッグストアが徒歩10分圏内です!
- 野球場やプール、テニスコートのある助松公園まで徒歩3分!
- 住宅性能評価取得!耐震等級3!
- フジ住宅の新築一戸建ては【ZEH水準省エネ住宅】だから「住宅ローン減税」の対象です!
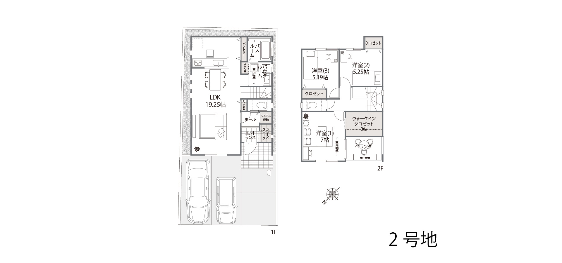
間取り


「ZEH水準」の省エネ住宅
フジ住宅の建物は【ZEH水準省エネ住宅】だから『住宅ローン減税』の対象となります。
BELS(ベルス)とは、第3者評価機関が評価し認定した『建築物省エネルギー性能』 をわかりやすく表示したものです。

※40年返済での計算です。※当社提携銀行ローン0.87%/3,390万円の物件を頭金0円で3,390万円借入れの場合※月々返済/67,118円※ボーナス返済(年2回)/約10万円(1回分)※当社提携銀行ローン年0.87%(変動金利)元利均等払い・現行金利3.075%から-2.205%優遇金利を適用した場合の計算例です。※金利は変更される場合があります。※融資限度額/購入価格が融資限度額(100万円以上2億円以内・10万円単位)。※融資限度額の割合/物件価格の最高110%以内(各金融機関による)。※銀行融資手数料/お借入金額×~2.2%(各金融機関による)。※金融機関事務手数料/66,000円(各金融機関による)。※団体信用生命保険/加入要。※当社事務手数料/110,000円(税込)。※上記金利は2025年10月1日時点のものです。上記金利は一定の条件を満たす方の例です。※販売価格には消費税(10%)相当額が含まれます。※販売価格には外構・付帯工事費が含まれます。※諸費用/自治会費、登記費用、並びに住宅ローンご利用の方は利用するローンの規定と利用形態に応じた保証料・事務手数料及び火災保険料等が必要になります。※間取図・外構等は図面を基に描いたイメージにつき、実際とは一部異なる場合があります。(2025年7月時点)※間取図の家具・車の表記はイメージ配置になり、実際には付きません。※FC=ファミリークロゼット、WIC=ウォークインクロゼット、SC=シューズクローク。※「住宅ローン減税」について詳しくはこちらのサイトをご確認ください。 ※「BELS」について詳しくはこちらのサイトをご確認ください。


「ZEH水準」の省エネ住宅
フジ住宅の建物は【ZEH水準省エネ住宅】だから『住宅ローン減税』の対象となります。
BELS(ベルス)とは、第3者評価機関が評価し認定した『建築物省エネルギー性能』 をわかりやすく表示したものです。

※40年返済での計算です。※当社提携銀行ローン0.87%/3,490万円の物件を頭金0円で3,490万円借入れの場合※月々返済/69,586円※ボーナス返済(年2回)/約10万円(1回分)※当社提携銀行ローン年0.87%(変動金利)元利均等払い・現行金利3.075%から-2.205%優遇金利を適用した場合の計算例です。※金利は変更される場合があります。※融資限度額/購入価格が融資限度額(100万円以上2億円以内・10万円単位)。※融資限度額の割合/物件価格の最高110%以内(各金融機関による)。※銀行融資手数料/お借入金額×~2.2%(各金融機関による)。※金融機関事務手数料/66,000円(各金融機関による)。※団体信用生命保険/加入要。※当社事務手数料/110,000円(税込)。※上記金利は2025年10月1日時点のものです。上記金利は一定の条件を満たす方の例です。※販売価格には消費税(10%)相当額が含まれます。※販売価格には外構・付帯工事費が含まれます。※諸費用/自治会費、登記費用、並びに住宅ローンご利用の方は利用するローンの規定と利用形態に応じた保証料・事務手数料及び火災保険料等が必要になります。※間取図・外構等は図面を基に描いたイメージにつき、実際とは一部異なる場合があります。(2025年7月時点)※間取図の家具・車の表記はイメージ配置になり、実際には付きません。※FC=ファミリークロゼット、WIC=ウォークインクロゼット、SC=シューズクローク。※「住宅ローン減税」について詳しくはこちらのサイトをご確認ください。 ※「BELS」について詳しくはこちらのサイトをご確認ください。
フジ住宅の家づくり
理想の住まいを目指しました。
理想の住まいを目指しました。
周辺環境
-
南海本線「北助松」駅まで徒歩8分 南海本線「泉大津」駅まで自転車7分(1820m)
-
デイリーカナート北助松店770m 万代泉大津条南店970m ウエルシア泉大津助松店340m デイリーヤマザキ泉大津助松店220m ファミリーマート泉大津北助松店600m セブンイレブン泉大津北助松駅前店730m
-
上條小学校620m 小津中学校260m かみじょう認定こども園470m アイビースクール(認定こども園)1370m 条東こども園1450m
-
原病院500m 杉本クリニック530m 上條診療所780m
-
助松公園220m 泉大津市役所1600m
※徒歩分数は80mを1分、自転車分数は300mを1分として算出(端数切り上げ)した概算分数です。信号待ち時間は含まれません。 ※道路距離は現地からの地図上での概測です。
現地周辺図
物件概要
-
物件名称 アイーナネオ泉大津助松町 所在地 大阪府泉大津市助松町3丁目699-6、699-18 交通 南海本線「北助松」駅まで徒歩8分、「泉大津」駅まで徒歩23分
総区画数 2 区画 用途地域 第一種中高層住居専用地域 地目 宅地 建ペイ率 60% 容積率 160% 電気・ガス 関西電力・都市ガス 水道・排水 公営水道・公共下水 道路幅員 4.0m(北西側・市道 附則5項) 私道負担 有り(1号地 0.6㎡、2号地1.37㎡) 宅地面積 1号地:98.25m2(29.72坪)
2号地:101.22m2(30.61坪)建物面積 1号地:91.93m2(27.80坪)
2号地:93.79m2(28.37坪)その他 市街化区域 売主 フジ住宅株式会社
〒596-8588 大阪府岸和田市土生町1丁目4番23号
TEL:072-437-8700(代表) TEL:072-437-0601(お問合せ番号)
宅建免許/国土交通大臣(13)第2430号、建設業許可/国土交通大臣 許可(特-4)第26825号、 一級建築士事務所登録/大阪府知事登録(ハ)第24188号
(一社)大阪府宅地建物取引業協会正会員、(公社)近畿地区不動産公正取引協議会加盟販売概要【建売分譲概要】
区画名称 アイーナネオ泉大津助松町1号地 販売戸数 1 戸 販売価格 3,390万円 外構・付帯工事費 販売価格に含む 間取り 3LDK+SC+FC+WIC 建物面積 91.93m2 (27.80坪) 土地面積 98.25m2 (29.72坪) 建築確認番号 R07確認建築近確0000790号(2025年7月3日) 完成時期(築年月) 2025年11月 販売スケジュール 先着順 取引条件の有効期限 2026年1月13日 入居時期 契約後3ヶ月 構造・規模 木造 2階建 売主 フジ住宅株式会社 問い合わせ 0120-24-0413 ※先着順につき、契約済の場合がございます。あらかじめご了承ください。 ※諸費用/自治会費、登記費用、並びに住宅ローンご利用の方は利用するローンの規定と利用形態に応じた保証料・事務手数料及び火災保険料等が必要になります。
※販売価格には、消費税(10%)相当額が含まれます。
※販売価格には外構・付帯工事費が含まれます。
※契約・手続きの状況によってはご希望の時期にご入居出来ない場合もございますので事前に担当者にご確認ください。
※植栽工事につきましては、お引き渡し後に当社指定業者と打合せをして頂き、植栽箇所を決めて頂きます。尚、植樹を希望されない場合でも、返金等には応じかねます。
※完成時期(築年月):建設中の場合は、建物が完成する時期を、完成済みの場合は建築された年月を表示しています。
※FC=ファミリークロゼット、WIC=ウォークインクロゼット、SC=シューズクローク
※駐車台数は車種による制限あり、実際に駐車可能かはお客様にて、現地でご確認をお願いいたします区画名称 アイーナネオ泉大津助松町2号地 販売戸数 1 戸 販売価格 3,490万円 外構・付帯工事費 販売価格に含む 間取り 3LDK+SC+WIC 建物面積 93.79m2 (28.37坪) 土地面積 101.22m2 (30.61坪) 建築確認番号 R07確認建築近確0000791号(2025年7月3日) 完成時期(築年月) 2025年11月 販売スケジュール 先着順 取引条件の有効期限 2026年1月13日 入居時期 契約後3ヶ月 構造・規模 木造 2階建 売主 フジ住宅株式会社 問い合わせ 0120-24-0413 ※先着順につき、契約済の場合がございます。あらかじめご了承ください。 ※諸費用/自治会費、登記費用、並びに住宅ローンご利用の方は利用するローンの規定と利用形態に応じた保証料・事務手数料及び火災保険料等が必要になります。
※販売価格には、消費税(10%)相当額が含まれます。
※販売価格には外構・付帯工事費が含まれます。
※契約・手続きの状況によってはご希望の時期にご入居出来ない場合もございますので事前に担当者にご確認ください。
※植栽工事につきましては、お引き渡し後に当社指定業者と打合せをして頂き、植栽箇所を決めて頂きます。尚、植樹を希望されない場合でも、返金等には応じかねます。
※完成時期(築年月):建設中の場合は、建物が完成する時期を、完成済みの場合は建築された年月を表示しています。
※FC=ファミリークロゼット、WIC=ウォークインクロゼット、SC=シューズクローク
※駐車台数は車種による制限あり、実際に駐車可能かはお客様にて、現地でご確認をお願いいたします情報更新日
今回情報更新日 2026/01/07 次回情報更新日 2026/01/21
周辺の物件情報




















お問合せ
資料請求
来場予約
資料請求
来場予約
電話する




