※間取図・外構等は図面をもとに描いたイメージにつき、実際とは一部異なる場合があります。家具・車の表記はイメージ配置になり、実際には付きません。(2025年9月時点)
便利で快適な暮らしが叶うフジ住宅の
新築一戸建て「アイーナネオ」
資料請求・来場予約受付中!
新着情報
- 【アイーナネオ堺深井清水町】子育て世帯に人気の深井エリア生活圏に限定1棟誕生♪資料請求・来場予約受付中!
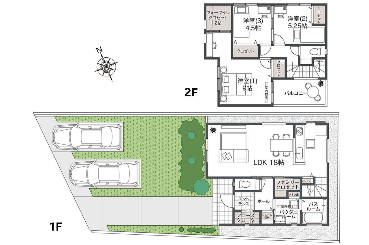
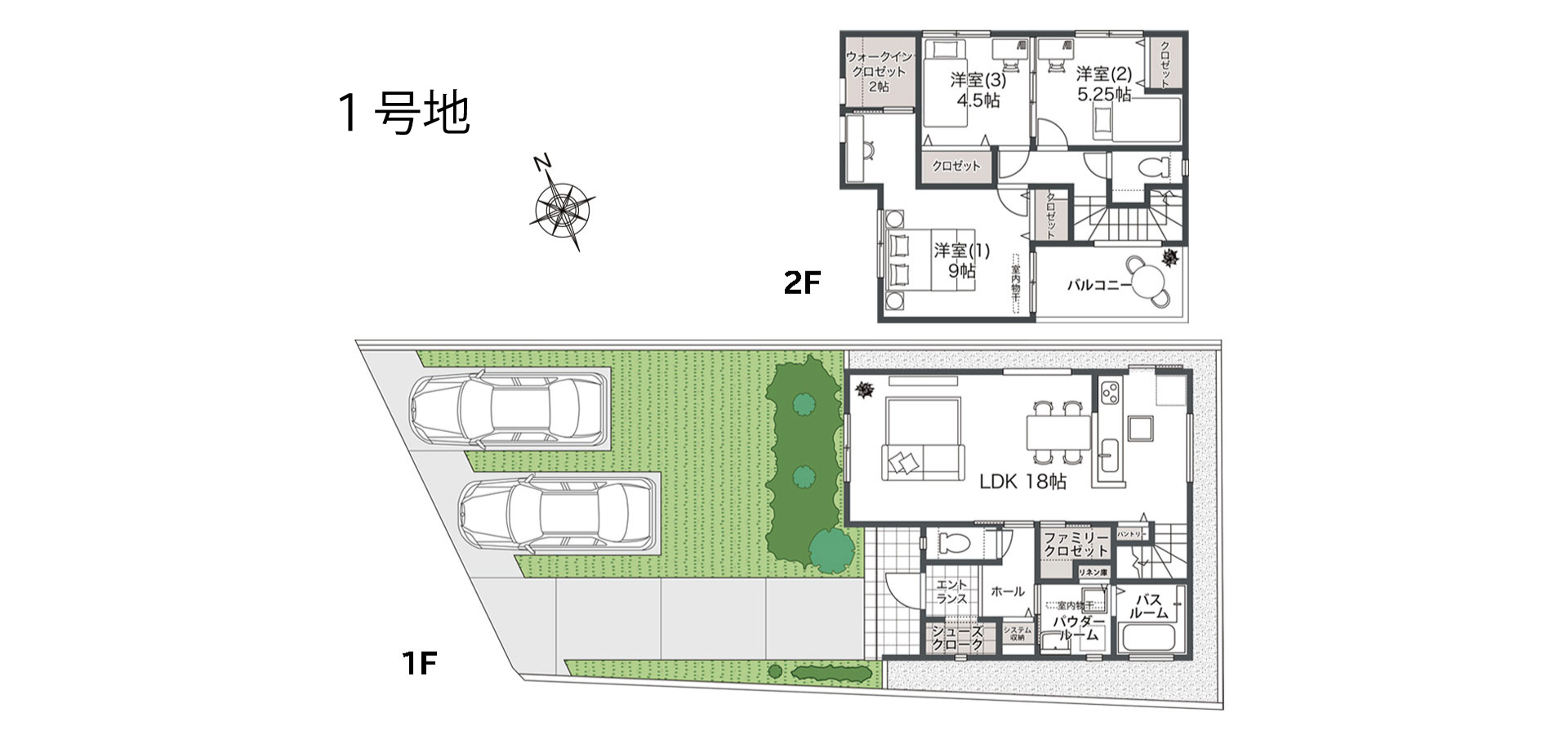
1号地 間取り図





- ゆとりの敷地にスムーズな生活動線と収納力を備えた快適設計!
- 家族の気配を感じやすいリビング階段の間取り!
- おうちの空気をきれいに保つ「炭の家」!
- 駐車2台分のスペースがあります(車種による)!
- スーパー、コンビニ、ドラッグストアが徒歩10分圏内に揃う好立地!
- 小学校や公園が近くで子育てファミリーにうれしい住環境!
- 住宅性能評価取得!耐震等級3!
- フジ住宅の新築一戸建ては【ZEH水準省エネ住宅】だから「住宅ローン減税」の対象です!
※40年返済での計算です。※当社提携銀行ローン0.87%/4,690万円の物件を頭金0円で4,690万円借入れの場合※月々返済/89,203円※ボーナス返済(年2回)/16.0万円(1回分) ※当社提携銀行ローン 年0.87%(変動金利)※元利均等払い・変動金利(現行金利3.075%から-2.205%優遇金利を適用した場合の計算例です。)※金利は変更される場合があります。上記金利は2025年10月1日時点のものです。上記金利は一定の条件を満たす方の例です。※融資限度額/購入価格が融資限度額(100万円以上2億円以内・10万円単位)※融資限度額の割合/物件価格の最高110%以内(各金融機関による)※銀行融資手数料/お借入金額 ×~2.2%(各金融機関による)※金融機関事務手数料/66,000円(各金融機関による)※団体信用生命保険/加入要※当社事務手数料/110,000円(税込)※価格には、消費税(10%)相当額が含まれます。※販売価格には外構・付帯工事費が含まれます。※諸費用/自治会費、登記費用、並びに住宅ローンご利用の方は利用するローンの規定と利用形態に応じた保証料・事務手数料及び火災保険料等が必要になります。※間取図・外構等は図面をもとに描いたイメージにつき、実際とは一部異なる場合があります。※家具・車の表記はイメージ配置になり、実際には付きません。(2025年9月時点)
フジ住宅の家づくり
理想の住まいを目指しました。
理想の住まいを目指しました。
周辺環境
-
南海泉北線「深井」駅 徒歩12分 JR阪和線「上野芝」駅 徒歩32分
-
万代堺深井店 (340m) グルメシティ深井駅前店 (880m) コノミヤ深井店 (920m) ウエルシア堺深井清水町店 (340m) ローソン堀上町東店 (470m)
-
クレア保育園 (400m) 深井こども園(認定こども園) (500m) 深井小学校 (480m) 深井中央中学校 (1,310m)
-
ふじわらしんいち総合クリニック (530m) 日野クリニック (910m)
-
堺深井郵便局 (430m) ソフィア堺 (380m) 堺市中区役所 (1,170m) 清水こやま公園 (160m)
※徒歩分数は80mを1分、自転車分数は300mを1分として算出(端数切り上げ)した概算分数です。信号待ち時間は含まれません。 ※道路距離は現地からの地図上での概測です。
現地周辺図
物件概要
-
物件名称 アイーナネオ堺深井清水町 所在地 大阪府堺市中区深井清水町 交通 JR阪和線「上野芝」駅 徒歩32分
南海泉北線「深井」駅 徒歩12分
総区画数 1 区画 用途地域 第一種住居地域 地目 宅地 建ペイ率 60% 容積率 200% 電気・ガス 関西電力・都市ガス 水道・排水 給水:公営水道、排水:公共下水 宅地面積 155.49m2(47.03坪) 私道負担 なし 売主 フジ住宅株式会社
〒596-8588 大阪府岸和田市土生町1丁目4番23号
TEL:072-437-8700(代表) TEL:072-437-0601(お問合せ番号)
宅建免許/国土交通大臣(13)第2430号、建設業許可/国土交通大臣 許可(特-4)第26825号、 一級建築士事務所登録/大阪府知事登録(ハ)第24188号
(一社)大阪府宅地建物取引業協会正会員、(公社)近畿地区不動産公正取引協議会加盟販売概要【建売分譲概要】
区画名称 アイーナネオ堺深井清水町 1号地 販売戸数 1 戸 販売価格 4,690万円(税込) 外構・付帯工事費 販売価格に含む 間取り 3LDK+WIC +SC+FC 建物面積 96.49㎡ (29.18坪) 土地面積 155.49㎡ (47.03坪) 建物竣工時期 2025年11月 建築確認番号 R07確認建築近確0001055号(2025年7月23日) 販売スケジュール 先着順 入居時期 契約後3ヶ月 構造・規模 木造(在来軸組工法) 売主 フジ住宅株式会社 問い合わせ 0120-24-0413 ※諸費用/自治会費、登記費用、並びに住宅ローンご利用の方は利用するローンの規定と利用形態に応じた保証料・事務手数料及び火災保険料等が必要になります。 ※先着順につき、契約済の場合がございます。あらかじめご了承ください。 ※販売価格には、消費税(10%)相当額が含まれます。
※販売価格には外構・付帯工事費が含まれます。
※契約・手続きの状況によってはご希望の時期にご入居出来ない場合もございますので事前に担当者にご確認ください。
※FC=ファミリークロゼット、WIC=ウォークインクロゼット、SC=シューズクローク情報更新日
今回情報更新日 2026/02/24 次回情報更新日 2026/03/10
周辺の物件情報






















お問合せ
資料請求
来場予約
資料請求
来場予約
電話する




