※道路距離は現地からの地図上での概測です。信号待ち時間は含まれません。※近鉄南大阪線「藤井寺」駅 自転車6分(1,700m)、近鉄南大阪線/近鉄長野線「古市」駅 自転車7分(2,000m)。※間取図・外構等は図面をもとに描いたイメージにつき、実際とは一部異なる場合があります。家具・車の表記はイメージ配置になり、実際には付きません。(2025年6月時点)
便利で快適な暮らしが叶うフジ住宅の
新築一戸建て「アイーナネオ」好評販売中!
限定2棟!資料請求・来場予約受付中!
新着情報
- 【アイーナネオ藤井寺古室】藤井寺市の閑静な第1種低層住居専用地域に、新築一戸建て2棟の販売決定!いよいよ7/19~販売開始!
区画図
※掲載の全体区画図イメージイラストは図面を基に描き起こしたもので、イメージにつき実際とは異なります。また、行政の指導等により変更となる場合がございます。フェンス等は一部省略しております。

※掲載の全体区画図イメージイラストは図面を基に描き起こしたもので、イメージにつき実際とは異なります。また、行政の指導等により変更となる場合がございます。フェンス等は一部省略しております。








































- 家中の空気を洗うフジ住宅の「炭の家」仕様!
- 限定2区画です!
- 駐車2台分のスペースとお庭があります!
- 近鉄南大阪線「土師ノ里」駅徒歩11分、「藤井寺」駅徒歩22分(自転車6分)!
- 近鉄南大阪線/近鉄長野線「古市」駅徒歩25分(自転車7分)!
- 住宅性能評価取得!耐震等級3!
- フジ住宅の新築一戸建ては【ZEH水準省エネ住宅】だから「住宅ローン減税」の対象です!
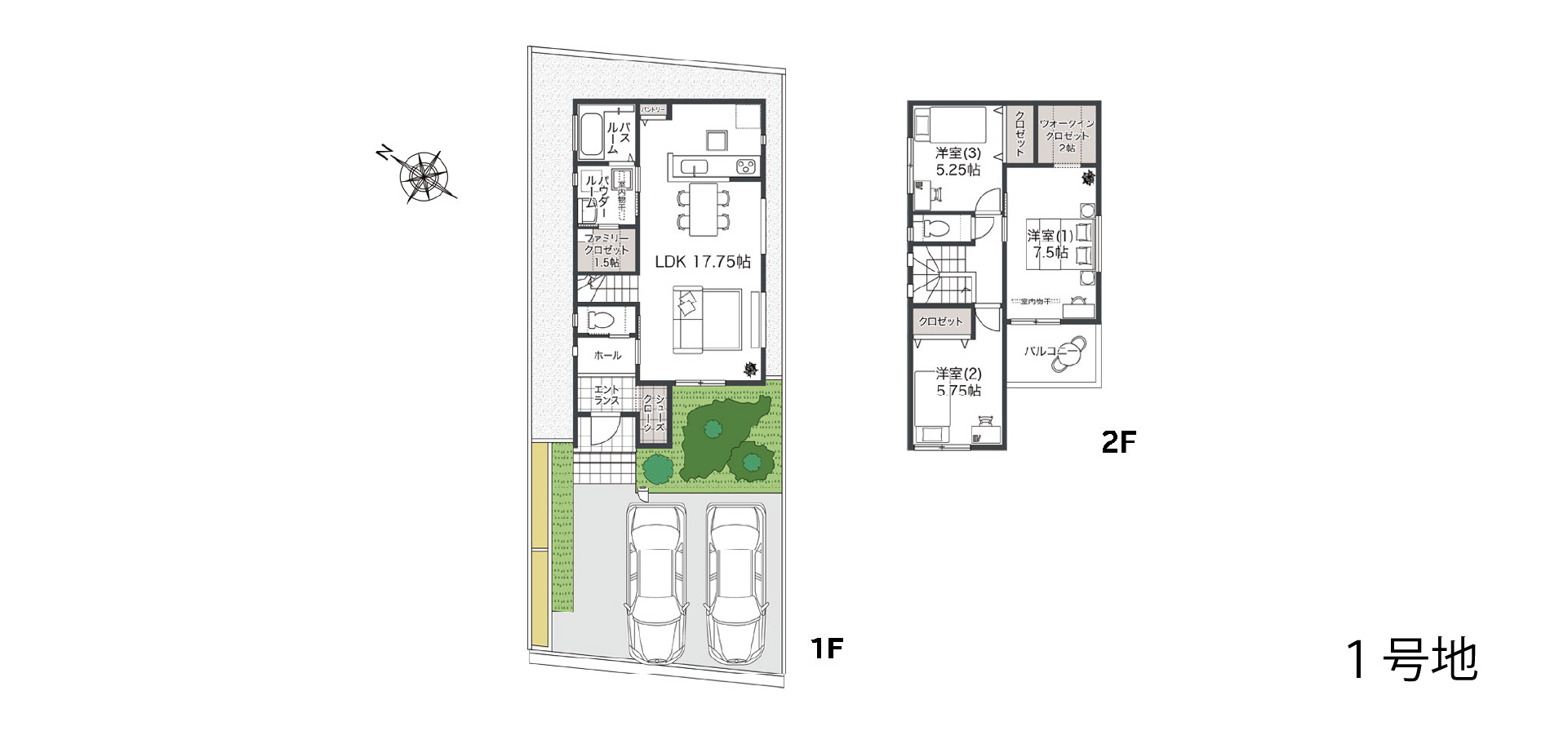
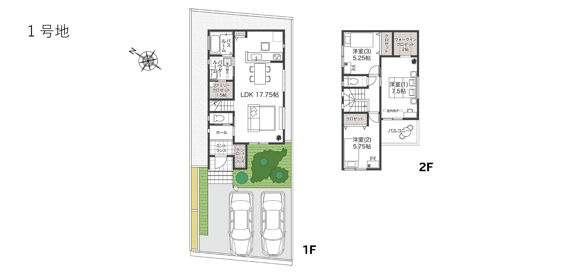
間取り



\動画でご紹介!ルームツアー/
※40年返済での計算です。※当社提携銀行ローン0.87%/3,590万円の物件を頭金0円で3,590万円借入れの場合※月々返済/72,053円※ボーナス返済(年2回)/約10.0万円(1回分)※当社提携銀行ローン 年0.87%(変動金利)元利均等払い・現行金利3.075%から-2.205%優遇金利を適用した場合の計算例です。※金利は変更される場合があります。※融資限度額/購入価格が融資限度額(100万円以上2億円以内・10万円単位)。※融資限度額の割合/物件価格の最高110%以内(各金融機関による)。※銀行融資手数料/お借入金額 ×~2.2%(各金融機関による)。※金融機関事務手数料/66,000円(各金融機関による)。※団体信用生命保険/加入要。※当社事務手数料/110,000円(税込)。※上記金利は2025年10月1日時点のものです。上記金利は一定の条件を満たす方の例です。※販売価格には消費税(10%)相当額が含まれます。※販売価格には外構・付帯工事費が含まれます。※諸費用/自治会費、登記費用、並びに住宅ローンご利用の方は利用するローンの規定と利用形態に応じた保証料・事務手数料及び火災保険料等が必要になります。※間取図・外構等は図面を基に描いたイメージにつき、実際とは一部異なる場合があります。(2025年6月時点)※間取図の家具・車の表記はイメージ配置になり、実際には付きません。※WIC=ウォークインクロゼット、FC=ファミリークロゼット、SC=シューズクローク。



※40年返済での計算です。※当社提携銀行ローン0.87%/3,790万円の物件を頭金0円で3,790万円借入れの場合※月々返済/76,988円※ボーナス返済(年2回)/約10.0万円(1回分)※当社提携銀行ローン 年0.87%(変動金利)元利均等払い・現行金利3.075%から-2.205%優遇金利を適用した場合の計算例です。※金利は変更される場合があります。※融資限度額/購入価格が融資限度額(100万円以上2億円以内・10万円単位)。※融資限度額の割合/物件価格の最高110%以内(各金融機関による)。※銀行融資手数料/お借入金額 ×~2.2%(各金融機関による)。※金融機関事務手数料/66,000円(各金融機関による)。※団体信用生命保険/加入要。※当社事務手数料/110,000円(税込)。※上記金利は2025年10月1日時点のものです。上記金利は一定の条件を満たす方の例です。※販売価格には消費税(10%)相当額が含まれます。※販売価格には外構・付帯工事費が含まれます。※諸費用/自治会費、登記費用、並びに住宅ローンご利用の方は利用するローンの規定と利用形態に応じた保証料・事務手数料及び火災保険料等が必要になります。※間取図・外構等は図面を基に描いたイメージにつき、実際とは一部異なる場合があります。(2025年6月時点)※間取図の家具・車の表記はイメージ配置になり、実際には付きません。※WIC=ウォークインクロゼット、FC=ファミリークロゼット、SC=シューズクローク。
\動画でご紹介!ルームツアー/
フジ住宅の家づくり
理想の住まいを目指しました。
理想の住まいを目指しました。
周辺環境
-
近鉄南大阪線「土師ノ里」駅 徒歩11分 近鉄南大阪線「藤井寺」駅 徒歩22分 近鉄長野線「古市」駅 徒歩25分
-
セブンイレブン藤井寺道明寺2丁目店 (560m) ローソン藤井寺西古室店 (650m) 食品館アプロ藤井寺店 (910m) サンプラザ誉田店 (1,080m) ロピア藤井寺店 (1,740m) イオン藤井寺ショッピングセンター (1,910m)
-
道明寺南小学校 (930m) 第三中学校 (1,500m)
-
くろだ内科クリニック (570m)
-
アイセルシュラホール(藤井寺市立図書館) (1,270m) 柏原市玉手山公園 (2,300m)
※徒歩分数は80mを1分、自転車分数は300mを1分として算出(端数切り上げ)した概算分数です。信号待ち時間は含まれません。 ※道路距離は現地からの地図上での概測です。
現地周辺図
物件概要
-
物件名称 アイーナネオ藤井寺古室 所在地 大阪府藤井寺市古室2丁目368番4 交通 近鉄南大阪線「土師ノ里」駅まで徒歩11分・「藤井寺」駅まで徒歩22分、近鉄長野線「古市」駅まで徒歩25分
総区画数 2 区画 地目 宅地 用途地域 第一種低層住居専用地域 道路幅員 4.0m(南西側・市道42-1-1) 電気・ガス 関西電力・都市ガス 水道・排水 公営水道・個別浄化槽 私道負担 1号地:2.23㎡、2号地:4.57㎡ 売主 フジ住宅株式会社
〒596-8588 大阪府岸和田市土生町1丁目4番23号
TEL:072-437-8700(代表) TEL:072-437-0601(お問合せ番号)
宅建免許/国土交通大臣(13)第2430号、建設業許可/国土交通大臣 許可(特-4)第26825号、 一級建築士事務所登録/大阪府知事登録(ハ)第24188号
(一社)大阪府宅地建物取引業協会正会員、(公社)近畿地区不動産公正取引協議会加盟販売概要【建売分譲概要】
販売戸数 2 戸 販売価格 1号地:3,590万円(税込)2号地:3,790万円(税込) 外構・付帯工事費 販売価格に含む 間取り 1号地:3LDK+SC+FC+WIC2号地:3LDK+SC+FC+WIC 建物面積 1号地:92.75m2(28.05坪)
2号地:94.41m2(28.55坪)土地面積 1号地:130.02m2(39.33坪)※土地面積には共有塀による建確申請外面積1.06㎡を含む。
2号地:144.07m2(43.58坪)建物竣工時期 2025年9月 建築確認番号 1号地:第R07確認建築近確0000408号(2025年5月28日)2号地:第R07確認建築近確0000409号(2025年5月28日) 販売スケジュール 先着順 入居時期 完成後3ヶ月 構造・規模 木造(在来軸組工法) 取引条件の有効期限 2026年1月20日 売主 フジ住宅株式会社 問い合わせ 0120-24-0413 ※諸費用/自治会費、登記費用、並びに住宅ローンご利用の方は利用するローンの規定と利用形態に応じた保証料・事務手数料及び火災保険料等が必要になります。 ※先着順につき、契約済の場合がございます。あらかじめご了承ください。 ※販売価格には、消費税(10%)相当額が含まれます。
※販売価格には外構・付帯工事費が含まれます。
※契約・手続きの状況によってはご希望の時期にご入居出来ない場合もございますので事前に担当者にご確認ください。
※FC=ファミリークロゼット、WIC=ウォークインクロゼット、SC=シューズクローク情報更新日
今回情報更新日 2026/01/16 次回情報更新日 2026/01/30
周辺の物件情報












お問合せ
資料請求
来場予約
資料請求
来場予約
電話する




