貝塚市加神 / 南海本線「貝塚」駅 徒歩8分
※間取図・外構等は図面をもとに描いたイメージにつき、実際とは一部異なる場合があります。家具・車の表記はイメージ配置になり、実際には付きません。(2026年4月時点)
貝塚市 加神に新築一戸建て販売開始!
資料請求・ご来場予約受付中です!
貝塚市 加神に新築一戸建て販売開始!
資料請求・ご来場予約受付中です!
- 各所に便利な収納スペースを備えた快適設計!
- 家族の気配を感じやすいリビング階段の間取り!
- 普通車2台分の駐車スペース(車種による)!
- スーパー、コンビニ、ドラッグストアが徒歩10分圏内に揃う好立地!
- 住宅性能評価取得!耐震等級3!
- フジ住宅の新築一戸建ては【ZEH水準省エネ住宅】です!
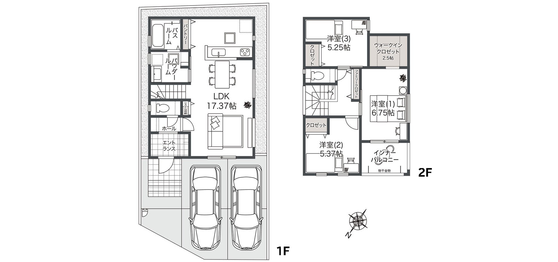
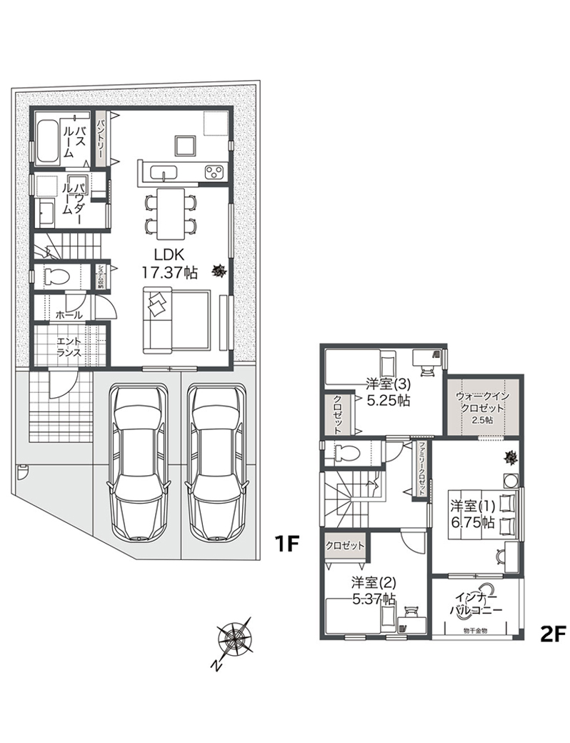
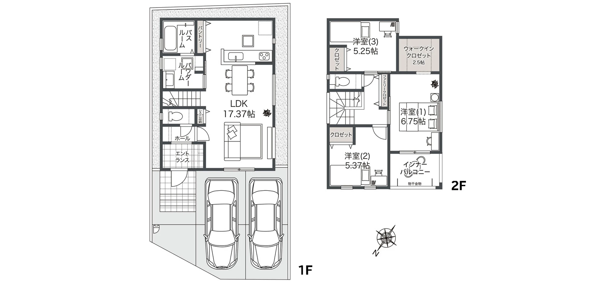
間取り





「ZEH水準」の省エネ住宅
フジ住宅の建物は【ZEH水準省エネ住宅】だから『住宅ローン減税』の対象となります。
BELS(ベルス)とは、第3者評価機関が評価し認定した『建築物省エネルギー性能』をわかりやすく表示したものです。

「ZEH水準」の省エネ住宅
フジ住宅の建物は【ZEH水準省エネ住宅】だから『住宅ローン減税』の対象となります。
BELS(ベルス)とは、第3者評価機関が評価し認定した『建築物省エネルギー性能』をわかりやすく表示したものです。

《当社取扱い提携ローンのご案内》※40年返済での計算です。※当社提携銀行ローン0.87%/3,490万円の物件を頭金0円で3,490万円借入れの場合 ※月々返済/69,586円 ※ボーナス返済(年2回)/約10万円(1回分)※当社提携銀行ローン 年0.87%(変動金利)元利均等払い・現行金利3.075%から-2.205%優遇金利を適用した場合の計算例です。※金利は変更される場合があります。※融資限度額/購入価格が融資限度額(100万円以上2億円以内・10万円単位)。※融資限度額の割合/物件価格の最高110%以内(各金融機関による)。※銀行融資手数料/お借入金額 ×~2.2%(各金融機関による)。※金融機関事務手数料/66,000円(各金融機関による)。※団体信用生命保険/加入要。※当社事務手数料/110,000円(税込)。上記金利は2025年10月1日時点のものです。上記金利は一定の条件を満たす方の例です。※価格には消費税(10%)が含まれます。※販売価格に外構・付帯工事費が含まれます。 ※諸費用/自治会費、登記費用、並びに住宅ローンご利用の方は利用するローンの規定と利用形態に応じた保証料・事務手数料及び火災保険料等が必要になります ※間取図・外構等は図面を基に描いたイメージにつき、実際とは一部異なる場合があります。 ※家具の表記はイメージ配置になり、実際には付きません。(2026年4月時点)
※「住宅ローン減税」について詳しくはこちらのサイトをご確認ください ※「BELS」について詳しくはこちらのサイトをご確認ください。
フジ住宅の家づくり
理想の住まいを目指しました。
理想の住まいを目指しました。
周辺環境
-
南海本線「貝塚」駅 徒歩 8分 JR阪和線「東貝塚」駅 徒歩25分
-
万代貝塚店 (480m) サンディ貝塚石才店 (1,200m) 松源貝塚鳥羽店 (1,750m) ファミリーマート小浦貝塚加神店 (240m) ファミリーマート貝塚駅前店 (530m) エバグリーン貝塚店 (500m)
-
西小学校 (1,040m) 第一中学校 (180m) 海塚保育所 (480m) 西幼稚園 (1,060m)
-
貝塚記念病院 (410m) 中谷医院 (530m)
-
貝塚市役所 (640m) 貝塚市民図書館 (720m) 二色の浜公園(脇浜児童遊戯場) (1,530m) 市民の森 (シェルシアター) (2,090m)
※徒歩分数は80mを1分、自転車分数は300mを1分として算出(端数切り上げ)した概算分数です。信号待ち時間は含まれません。 ※道路距離は現地からの地図上での概測です。※アクセス・周辺環境のデータは2026年4月現在のものです。
現地周辺図
物件概要
-
物件名称 アイーナネオ貝塚加神 所在地 大阪府貝塚市加神1丁目 交通 南海本線[貝塚]駅 徒歩8分、JR阪和線「東貝塚」駅 徒歩25分
総区画数 1 区画 用途地域 第二種中高層住居専用地域 地目 宅地 建ペイ率 60% 容積率 188% 電気・ガス 関西電力・都市ガス 水道・排水 公営水道・公共下水道 道路幅員 4.9m(南西側市道) 私道負担 私道負担無し 売主 フジ住宅株式会社
〒596-8588 大阪府岸和田市土生町1丁目4番23号
TEL:072-437-8700(代表) TEL:072-437-0601(お問合せ番号)
宅建免許/国土交通大臣(13)第2430号、建設業許可/国土交通大臣 許可(特-4)第26825号、 一級建築士事務所登録/大阪府知事登録(ハ)第24188号
(一社)大阪府宅地建物取引業協会正会員、(公社)近畿地区不動産公正取引協議会加盟販売概要【建売分譲概要】
販売戸数 1 戸 販売価格 3,490万円 外構・付帯工事費 販売価格に含む 間取り 3LDK+FC+WIC 建物面積 89.86m2(27.18坪) 土地面積 89.86m2(27.18坪) 建築確認番号 R07確認建築近確0003241号(2026年2月18日) 販売スケジュール 先着順 取引条件の有効期限 2026年4月7日 入居時期 完成後3ヶ月 構造・規模 木造2階建て 完成時期(築年月) 2026年6月 売主 フジ住宅株式会社 問い合わせ 0120-24-0413 ※諸費用/自治会費、登記費用、並びに住宅ローンご利用の方は利用するローンの規定と利用形態に応じた保証料・事務手数料及び火災保険料等が必要になります。 ※先着順につき、契約済の場合がございます。あらかじめご了承ください。 ※販売価格には外構・付帯工事費が含まれます。 ※契約・手続きの状況によってはご希望の時期にご入居出来ない場合もございますので事前に担当者にご確認ください。 ※販売価格には、消費税(10%)相当額が含まれます。 ※完成時期(築年月):建設中の場合は、建物が完成する時期を、完成済みの場合は建築された年月を表示しています。 ※WIC=ウォークインクロゼット、FC=シューズクローク
情報更新日
今回情報更新日 2026/04/03 次回情報更新日 2026/04/17
周辺の物件情報












お問合せ
資料請求
来場予約
資料請求
来場予約
電話する




