アフュージアガーデン八尾宮町 2号地家具付きモデルハウス分譲
創業から50年以上、幸せはこぶ住まいづくりをモットーに、数多くの住まいづくりに取り組んで参りました。
今回ご紹介するのは経験豊富な設計士がこだわったモデルハウス。快適な暮らしを叶える間取りや、ワンランク上の住み心地を実現する設備・仕様を採用しております。モデルハウスにつき、プロのインテリアコーディネーターが提案したコーディネート家具・エアコン・カーテン付きで分譲中です!
アフュージアガーデン八尾宮町 2号地モデルハウス
― 販売価格 4490万円(税込) ―
※掲載の情報は2025年11月時点のものです。
※先着順の為、ご成約済みの場合がございます。
今回ご紹介するのは経験豊富な設計士がこだわったモデルハウス。快適な暮らしを叶える間取りや、ワンランク上の住み心地を実現する設備・仕様を採用しております。モデルハウスにつき、プロのインテリアコーディネーターが提案したコーディネート家具・エアコン・カーテン付きで分譲中です!
アフュージアガーデン八尾宮町 2号地モデルハウス
― 販売価格 4490万円(税込) ―
※掲載の情報は2025年11月時点のものです。
※先着順の為、ご成約済みの場合がございます。
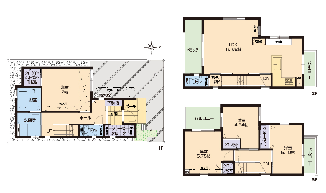
当社設計士こだわりの間取りポイントをご紹介
アフュージア八尾宮町 2号地モデルハウス
土地面積/66.66㎡(20.16坪)
建物面積/101.05㎡(30.56坪)
1階面積/33.75㎡(10.20坪) 2階面積/33.34㎡(10.08坪) 3階面積/33.96㎡(10.27坪)


16帖超のLDKは、南北にベランダとバルコニーがある為、数字以上の開放感を感じられます。
白いフローリングとのコントラストが美しい、木材の温もりを感じる家具付き分譲です。

白いフローリングとのコントラストが美しい、
木材の温もりを感じる家具付き分譲です。

お料理が効率的に行えるL型キッチン。
■日当たりとプライバシーに配慮された2階リビング
通行人の目を気にせずカーテンを開けて過ごす日々。
南向きに通風・開口部がある心地良いリビングです。
■お料理が楽しくなる対面式のL型キッチン
90°にシンクとコンロが配置され、お料理の効率が良いL型キッチン。
対面式でリビング・ダイニングとの一体感が魅力です。
並びに収納スペースがあるので良く使う道具や調味料の保管に便利です。
暮らしを豊かにするオススメの設備・仕様をご紹介


W1830の大容量セパレート式カップボード。キッチン背面開口部からバルコニーに出ることができます。

W1830の大容量セパレート式カップボード。

キッチン背面開口部からバルコニーに出ることができます。
■キッチン横のカップボードと可動棚
システムキッチンとデザインを統一したカップボードは室内の美観を高めます。
W1830で大容量、セパレート式で上下に収納でき、天板上で作業やディスプレイを楽しめます。
■キッチン背面のバルコニー
お料理中の換気や、一時的に物を保管するのに便利なスペースです。
日中は照明を付けなくても手元が明るく快適にお料理を楽しむことができます。
他にも、暮らしを豊かにする
オススメ設備や仕様も盛り沢山
▼ ▼ ▼ ▼ ▼ ▼ ▼ ▼
<機能>快適な暮らしを叶える設備・仕様
-
・24時間部屋中の空気がきれい【炭の家/ピュアエア】 ・断熱、遮熱効果を期待できるLow-eペアガラス採用 ・日当たりやプライバシーに配慮した2階LDK ・家事負担を減らす食器洗乾燥機付きキッチン ・トイレ渋滞を回避できる1階と2階のトイレ ・浴室乾燥機付き1616サイズのユニットバス ・屋根付きで日差しや雨を凌ぐができる2階ベランダ ・荷物を持っていても自動で点灯する人感センサー付きダウンライト ・高い耐震性能と設計自由度を誇るSE工法
<意匠>気分が上がるオシャレな設備・仕様
-
・外観を華やかにする日比谷花壇の外構植栽 ・キッチンと統一したデザインのカップボード収納 ・空間がスッキリするダウンライト ・魅せる収納を楽しめるキッチン横の可動棚 ・洗練された空間を演出するリビング片引き戸
☑創業50年を超える、当社の経験豊富な設計士がこだわった快適な暮らしを叶える間取り
☑ワンランク上の住み心地を実現する設備・仕様
☑プロのインテリアコーディネーターが提案した、コーディネート家具・エアコン・カーテン付き。
========================
アフュージアガーデン八尾宮町 2号地モデルハウス
販売価格 4490万円(税込)
========================
☑ワンランク上の住み心地を実現する設備・仕様
☑プロのインテリアコーディネーターが提案した、コーディネート家具・エアコン・カーテン付き。
========================
アフュージアガーデン八尾宮町 2号地モデルハウス
販売価格 4490万円(税込)
========================
他にもモデルハウス分譲ならではのメリットが盛り沢山!
◆直接見て、触れて、納得感を持ってご購入いただけます。
◆完成済みの為、引き渡し・入居までに時間がかかりません。などなど・・・
是非お気軽に、 現地モデルハウスのご見学にお越しくださいませ 。
※掲載の情報は2025年11月時点のものです。
※掲載の内外観写真、間取り図は「アフュージアガーデン八尾宮町」2号地モデルハウスのものです(2024年12月・2025年4月撮影)。一部CG加工及びオプションを含みます。
※掲載の内外観写真、間取り図の外構・植栽はモデルハウス仕様のため標準仕様とは異なります。
※モデルハウス販売は、現状有姿となります。現地にて、付帯設備・家具等を係員にお問い合わせ、お確かめ下さい。家電・家具等は商品購入時の保証となります。あらかじめご了承下さい。
※先着順につき、契約済の場合がございます。あらかじめご了承ください。
▼ ご見学ご予約・資料請求はこちら▼
お問い合わせは
0120-00-0022
【24時間受付中】携帯電話からもご利用頂けます。
※フリーダイヤルは9:30~18:15以外は音声案内となります。
お問い合わせは
0120-00-0022
【24時間受付中】携帯電話からもご利用頂けます。
※フリーダイヤルは9:30~18:15以外は音声案内となります。







お問合せ
資料請求![[ 即時確定 ] 見学予約する](/assets/bukken/img/calendar.png)





