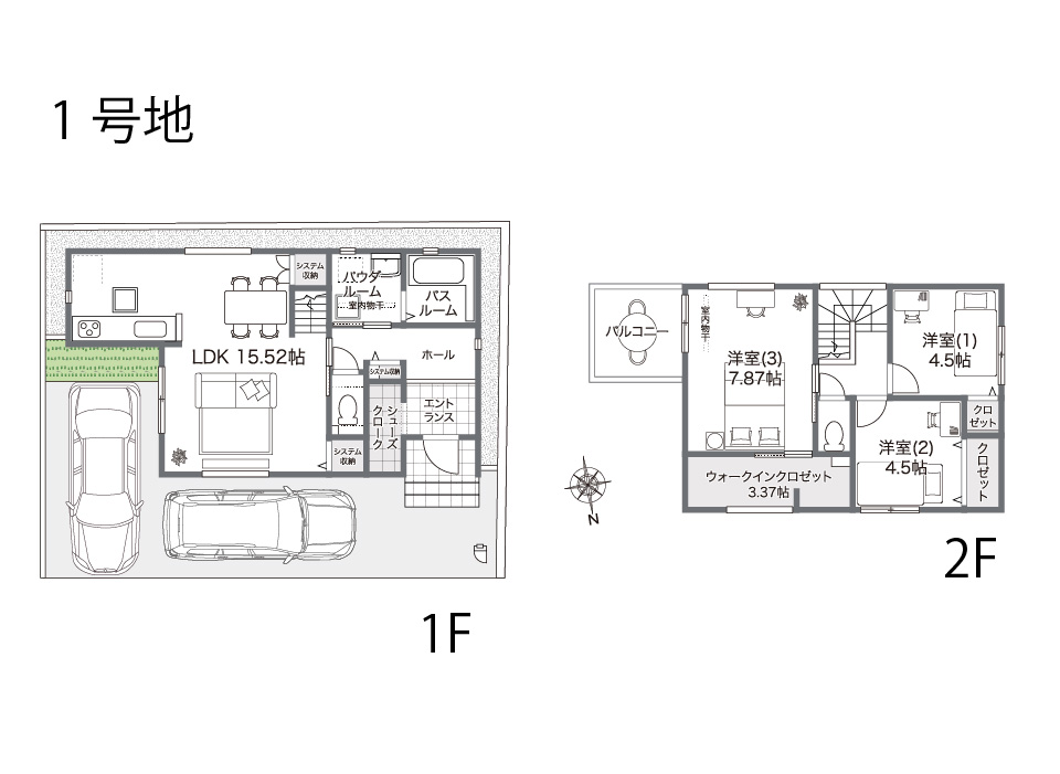
3LDK+WIC +SC
| 敷地面積 | 98.58㎡ (29.82坪) |
延べ床面積 | 88.00㎡ (26.62坪) |
| 1F面積 | 45.76㎡ (13.84坪) |
2F面積 | 42.24㎡ (12.77坪) |
モデルハウスを探す-
トップに戻る
※間取図・外構等は図面をもとに描いたイメージにつき、実際とは一部異なる場合があります。家具・車の表記はイメージ配置になり、実際には付きません。※掲載の外観写真は2025年7月に撮影したものです。
| 敷地面積 | 98.58㎡ (29.82坪) |
延べ床面積 | 88.00㎡ (26.62坪) |
| 1F面積 | 45.76㎡ (13.84坪) |
2F面積 | 42.24㎡ (12.77坪) |
※40年返済での計算です。※当社提携銀行ローン0.87%/3,790万円の物件を頭金0円で3,790万円借入れの場合※月々返済/76,988円※ボーナス返済(年2回)/10万円(1回分) ※当社提携銀行ローン 年0.87%(変動金利)※元利均等払い・変動金利(現行金利3.075%から-2.205%優遇金利を適用した場合の計算例です。)※金利は変更される場合があります。上記金利は2025年10月1日現在のものです。上記金利は一定の条件を満たす方の例です。※融資限度額/購入価格が融資限度額(100万円以上2億円以内・10万円単位)※融資限度額の割合/物件価格の最高110%以内(各金融機関による)※銀行融資手数料/お借入金額 ×~2.2%(各金融機関による)※金融機関事務手数料/66,000円(各金融機関による)※団体信用生命保険/加入要※当社事務手数料/110,000円(税込)※価格には、消費税(10%)相当額が含まれます。※販売価格には外構・付帯工事費が含まれます。※諸費用/自治会費、登記費用、並びに住宅ローンご利用の方は利用するローンの規定と利用形態に応じた保証料・事務手数料及び火災保険料等が必要になります。※間取図・外構等は図面を基に描いたイメージにつき、実際とは一部異なる場合があります。(2025年3月時点) ※間取図の家具・車の表記はイメージ配置になり、実際には付きません。詳しくは係員にお問い合わせください。
\動画でご紹介!ルームツアー/
フジ住宅の建物は【ZEH水準省エネ住宅】だから『住宅ローン減税』の対象となります。
BELS(ベルス)とは、第3者評価機関が評価し認定した『建築物省エネルギー性能』 をわかりやすく表示したものです。

モデルハウス写真




















モデルハウス案内図
| 物件名 | アイーナネオ松原天美東 |
| 所在地 | 大阪府松原市天美東8丁目 |
| 交通 アクセス |
近鉄南大阪線「河内天美」駅 徒歩5分 大阪メトロ御堂筋線「北花田」駅 徒歩26分 |