家族の快適と効率を叶える、収納充実の住まい
  • ウォークインクロゼット
  • シューズクローク
  • 炭の家
  • ファミリークロゼット
和泉市

アイーナネオ和泉府中町 1号地

新築一戸建て 販売中

家族の快適と効率を叶える、収納充実の住まい

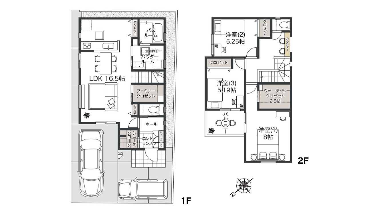
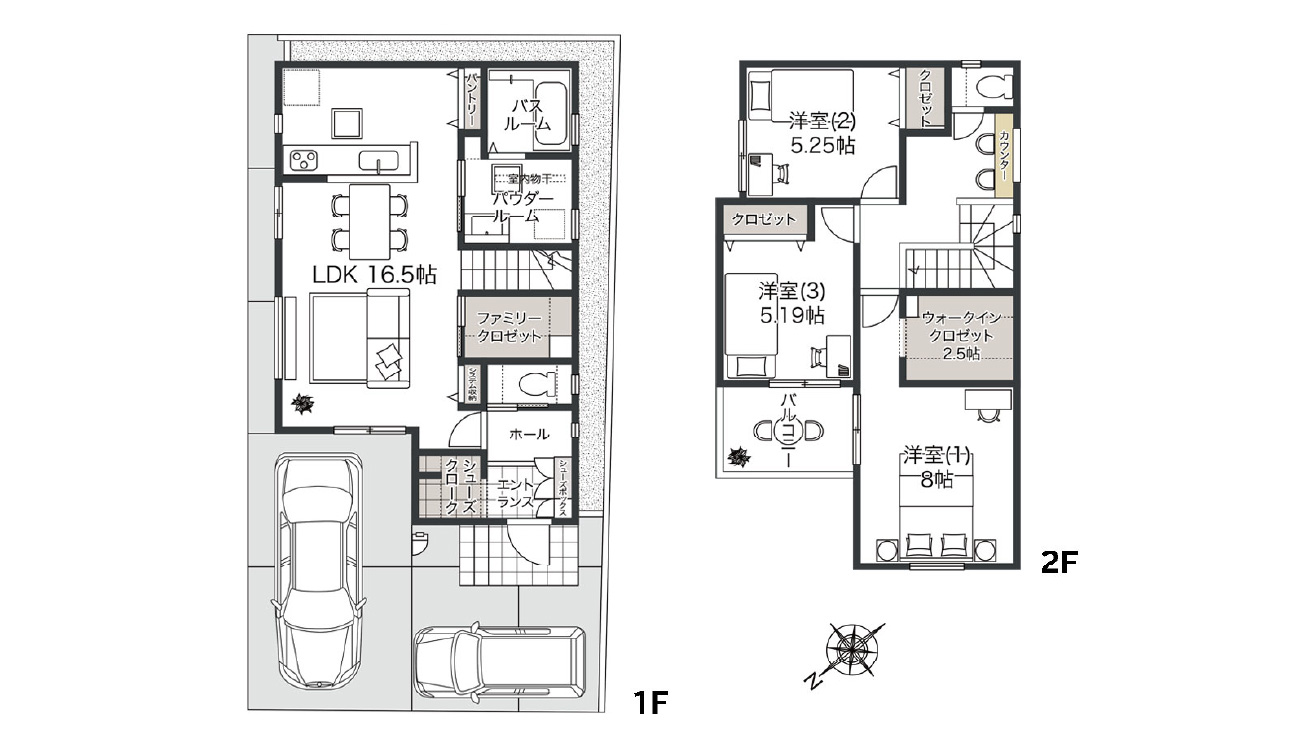
3LDK+SC+FC+WIC
分譲価格(税込)3,990.00万円
※建物竣工は2025年12月頃となるためそれまでは現地のみのご見学となります。

PLAN POINT間取り図

間取り図

40年返済での計算です。※当社提携銀行ローン0.87%/3,990万円の物件を頭金0円で3,990万円借入れの場合 ※月々返済/78,592円 ※ボーナス返済(年2回)/約12万円(1回分)※当社提携銀行ローン 年0.87%(変動金利)元利均等払い・現行金利3.075%から-2.205%優遇金利を適用した場合の計算例です。※金利は変更される場合があります。※融資限度額/購入価格が融資限度額(100万円以上2億円以内・10万円単位)。※融資限度額の割合/物件価格の最高110%以内(各金融機関による)。※銀行融資手数料/お借入金額 ×~2.2%(各金融機関による)。※金融機関事務手数料/66,000円(各金融機関による)。※団体信用生命保険/加入要。※当社事務手数料/110,000円(税込)。※上記金利は2025年9月1日現在のものです。上記金利は一定の条件を満たす方の例です。※販売価格に外構・付帯工事費が含まれます。※価格には消費税(10%)が含まれます。※掲載の間取り・外構は図面に描き起こしたイメージにつき、実際とは一部異なる場合があります(2025年9月時点)。※家具の表記はイメージにつき、実際には付きません。※WIC=ウォークインクロゼット、SC=シューズクローク、FC=ファミリークロゼット※詳しくは係員にお問い合わせください。※1F床面積:48.86㎡(14.78坪)、2F床面積:48.03㎡(14.52坪)

「ZEH水準」の省エネ住宅

フジ住宅の建物は【ZEH水準省エネ住宅】だから『住宅ローン減税』と 『子育てグリーン住宅支援事業』の対象となります。
BELS(ベルス)とは、第3者評価機関が評価し認定した『建築物省エネルギー性能』 をわかりやすく表示したものです。

省エネ住宅第3者評価BELS

※「住宅ローン減税」について詳しくはこちらのサイトをご確認ください。※「住宅ローン減税」について詳しくはこちらのサイトをご確認ください。 ※「子育てグリーン住宅支援事業」の対象は「子育て世帯または若者夫婦世帯のいずれか」となります。対象要件の詳細など詳しくはこちらのサイトをご確認ください。※「BELS」について詳しくはこちらのサイトをご確認ください

 

MAP

モデルハウス案内図

物件名 アイーナネオ和泉府中町
所在地 大阪府和泉市府中町2丁目
交通
アクセス
JR阪和線「和泉府中」駅まで徒歩7分
南海本線 「泉大津」駅まで徒歩38 分
MAPCODE 10 515 658*68
見学予約はこちらから見学予約
※建物竣工は2025年12月頃となるためそれまでは現地のみのご見学となります。

分譲地を探す

エリア別ページをみる