家事ラク動線と豊富な収納で、快適な暮らしを叶える家
  • ウォークインクロゼット
  • シューズクローク
  • 炭の家
堺市西区

アイーナネオ堺土塔町 2号地

新築一戸建て 販売中

家事ラク動線と豊富な収納で、快適な暮らしを叶える家

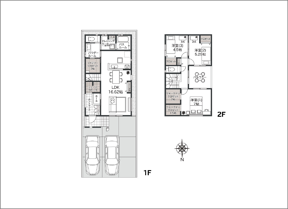
4LDK+WIC +SC
分譲価格(税込)4,050.00万円

PLAN POINT間取り図

間取り図

※40年返済での計算です。※当社提携銀行ローン0.87%/4,050万円の物件を頭金0円で4,050万円借入れの場合※月々返済/75,014円※ボーナス返済(年2回)/約15万円(1回分)※当社提携銀行ローン 年0.87%(変動金利)元利均等払い・現行金利3.075%から-2.205%優遇金利を適用した場合の計算例です。※金利は変更される場合があります。※融資限度額/購入価格が融資限度額(100万円以上2億円以内・10万円単位)。※融資限度額の割合/物件価格の最高110%以内(各金融機関による)。※銀行融資手数料/お借入金額 ×~2.2%(各金融機関による)。※金融機関事務手数料/66,000円(各金融機関による)。※団体信用生命保険/加入要。※当社事務手数料/110,000円(税込)。上記金利は2025年4月1日現在のものです。上記金利は一定の条件を満たす方の例です。※販売価格には消費税(10%)相当額が含まれます。※販売価格には外構・付帯工事費が含まれます。※諸費用/自治会費、登記費用、並びに住宅ローンご利用の方は利用するローンの規定と利用形態に応じた保証料・事務手数料及び火災保険料等が必要になります。※間取図・外構等は図面を基に描いたイメージにつき、実際とは一部異なる場合があります。(2025年5月時点)※間取図の家具・車の表記はイメージ配置になり、実際には付きません。※WIC=ウォークインクロゼット、SC=シューズクローク。

「ZEH水準」の省エネ住宅

フジ住宅の建物は【ZEH水準省エネ住宅】だから『住宅ローン減税』と 『子育てグリーン住宅支援事業』の対象となります。
BELS(ベルス)とは、第3者評価機関が評価し認定した『建築物省エネルギー性能』 をわかりやすく表示したものです。

省エネ住宅第3者評価BELS

※「住宅ローン減税」について詳しくはこちらのサイトをご確認ください。※「住宅ローン減税」について詳しくはこちらのサイトをご確認ください。 ※「子育てグリーン住宅支援事業」の対象は「子育て世帯または若者夫婦世帯のいずれか」となります。対象要件の詳細など詳しくはこちらのサイトをご確認ください。※「BELS」について詳しくはこちらのサイトをご確認ください
 

MAP

モデルハウス案内図

物件名 アイーナネオ堺土塔町
所在地 大阪府堺市中区土塔町3193-1
交通
アクセス
南海泉北線「深井」駅 徒歩21分、南海高野線「初芝」駅 徒歩24分

アイーナネオ堺土塔町
その他のモデルハウス

分譲地を探す

エリア別ページをみる