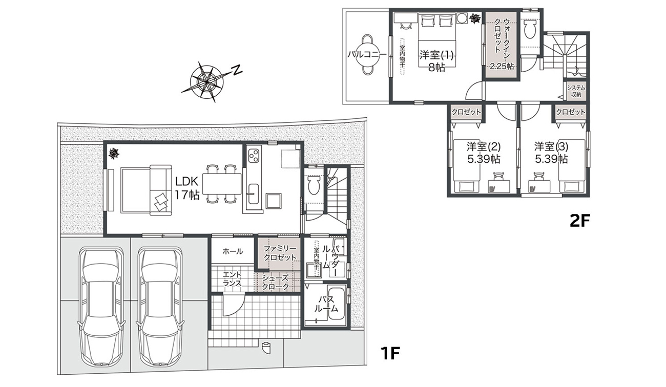
3LDK+WIC +SC+FC
| 敷地面積 | 115.87㎡ (35.05坪) |
延べ床面積 | 94.41㎡ (28.55坪) |
| 1F面積 | 48.03㎡ (14.52坪) |
2F面積 | 46.38㎡ (14.02坪) |
モデルハウスを探す-
トップに戻る
| 敷地面積 | 115.87㎡ (35.05坪) |
延べ床面積 | 94.41㎡ (28.55坪) |
| 1F面積 | 48.03㎡ (14.52坪) |
2F面積 | 46.38㎡ (14.02坪) |
40年返済での計算です。※当社提携銀行ローン0.87%/3,190万円の物件を頭金0円で3,190万円借入れの場合 ※月々返済/62,183円 ※ボーナス返済(年2回)/約10万円(1回分)※当社提携銀行ローン 年0.87%(変動金利)元利均等払い・現行金利3.075%から-2.205%優遇金利を適用した場合の計算例です。※金利は変更される場合があります。※融資限度額/購入価格が融資限度額(100万円以上2億円以内・10万円単位)。※融資限度額の割合/物件価格の最高110%以内(各金融機関による)。※銀行融資手数料/お借入金額 ×~2.2%(各金融機関による)。※金融機関事務手数料/66,000円(各金融機関による)。※団体信用生命保険/加入要。※当社事務手数料/110,000円(税込)。※上記金利は2025年4月1日現在のものです。上記金利は一定の条件を満たす方の例です。※販売価格に外構・付帯工事費が含まれます。※価格には消費税(10%)が含まれます。※掲載の間取り・外構は図面に描き起こしたイメージにつき、実際とは一部異なる場合があります(2025年9月時点)。※家具の表記はイメージにつき、実際には付きません。※WIC=ウォークインクロゼット、SC=シューズクローク、FC=ファミリークロゼット ※詳しくは係員にお問い合わせください。 ※1F床面積:48.03㎡(14.52坪)、2F床面積:46.38㎡(14.02坪)
フジ住宅の建物は【ZEH水準省エネ住宅】だから『住宅ローン減税』と 『子育てグリーン住宅支援事業』の対象となります。
BELS(ベルス)とは、第3者評価機関が評価し認定した『建築物省エネルギー性能』 をわかりやすく表示したものです。


モデルハウス案内図
| 物件名 | アイーナネオ岸和田土生町Ⅱ |
| 所在地 | 大阪府岸和田市土生町13丁目688-4 |
| 交通 アクセス |
JR阪和線「東岸和田」駅まで徒歩 18分 |