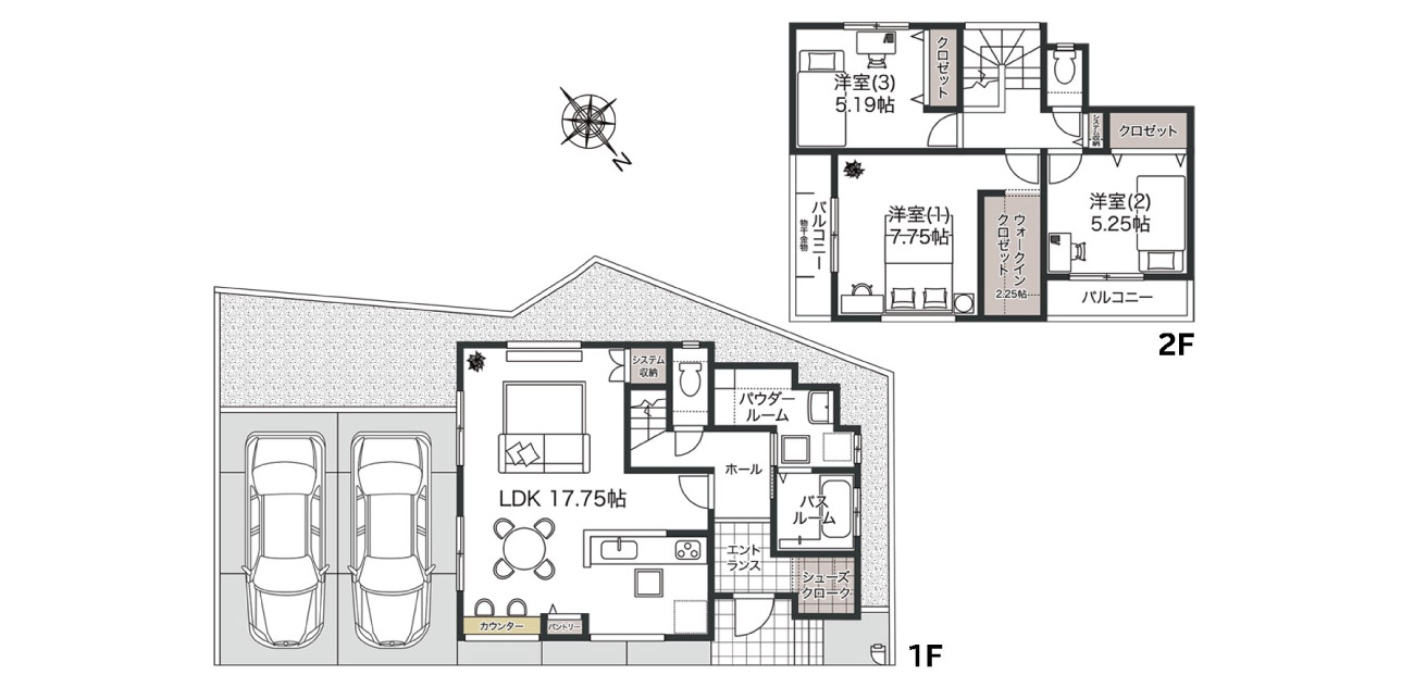
3LDK+WIC+SC
| 敷地面積 | 115.25㎡ (34.86坪) |
延べ床面積 | 94.62㎡ (28.62坪) |
| 1F面積 | 50.31㎡ (15.21坪) |
2F面積 | 44.31㎡ (13.40坪) |
モデルハウスを探す-
トップに戻る
| 敷地面積 | 115.25㎡ (34.86坪) |
延べ床面積 | 94.62㎡ (28.62坪) |
| 1F面積 | 50.31㎡ (15.21坪) |
2F面積 | 44.31㎡ (13.40坪) |
※40年返済での計算です。※当社提携都市銀行ローン0.87%/3,290万円の物件を頭金0円で3,290万円借入れの場合※月々返済/64,651万円※ボーナス返済(年2回)/約10万円(1回分)※当社提携銀行ローン 年0.87%(変動金利)元利均等払い・現行金利3.075%から-2.205%優遇金利を適用した場合の計算例です。※金利は変更される場合があります。※融資限度額/購入価格が融資限度額(100万円以上2億円以内・10万円単位)。※融資限度額の割合/物件価格の最高110%以内(各金融機関による)。※銀行融資手数料/お借入金額 ×~2.2%(各金融機関による)。※金融機関事務手数料/66,000円(各金融機関による)。※団体信用生命保険/加入要。※当社事務手数料/110,000円(税込)。上記金利は2025年10月1日時点のものです。上記金利は一定の条件を満たす方の例です。※販売価格には消費税(10%)相当額が含まれます。※販売価格には外構・付帯工事費が含まれます。※諸費用/自治会費、登記費用、並びに住宅ローンご利用の方は利用するローンの規定と利用形態に応じた保証料・事務手数料及び火災保険料等が必要になります。※間取図・外構等は図面を基に描いたイメージにつき、実際とは一部異なる場合があります。 ※間取図の家具・車の表記はイメージ配置になり、実際には付きません。(2025年11月時点) ※FC=ファミリークロゼット、WIC=ウォークインクロゼット、SC=シューズクローク。
フジ住宅の建物は【ZEH水準省エネ住宅】だから『住宅ローン減税』の対象となります。
BELS(ベルス)とは、第3者評価機関が評価し認定した『建築物省エネルギー性能』をわかりやすく表示したものです。

※「住宅ローン減税」について詳しくはこちらのサイトをご確認ください。※「BELS」について詳しくはこちらのサイトをご確認ください
モデルハウス案内図
| 物件名 | アイーナネオ泉佐野羽倉崎 |
| 所在地 | 大阪府泉佐野市羽倉崎上町3274-27、3274-28 |
| 交通 アクセス |
南海本線「羽倉崎」駅まで徒歩4分 |