憩いの和モダン。小上がり和室のあるLDKと収納力がうれしい家
  • ウォークインクロゼット
  • シューズクローク
  • DEN
和泉市

ファンジュ和泉箕形町 2号地

新築一戸建て 販売中

憩いの和モダン。小上がり和室のあるLDKと収納力がうれしい家

3LDK+DEN+WIC +SC
分譲価格(税込)3,290.00万円
※建物竣工は2026年4月頃となるためそれまでは現地のみのご見学となります。

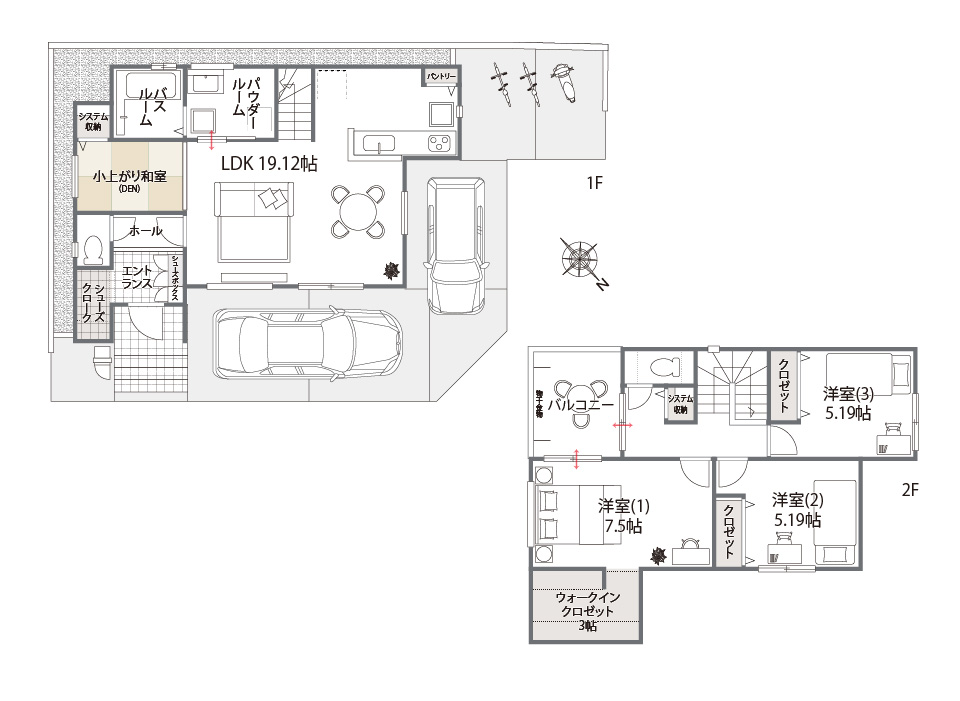
PLAN POINT間取り図

間取り図

※40年返済での計算です。※当社提携銀行ローン0.87%/3,290万円の物件を頭金0円で3,290万円借入れの場合※月々返済/71,313円※ボーナス返済(年2回)/約6.0万円(1回分)※当社提携銀行ローン 年0.87%(変動金利)元利均等払い・現行金利3.075%から-2.205%優遇金利を適用した場合の計算例です。※金利は変更される場合があります。※融資限度額/購入価格が融資限度額(100万円以上2億円以内・10万円単位)。※融資限度額の割合/物件価格の最高110%以内(各金融機関による)。※銀行融資手数料/お借入金額 ×~2.2%(各金融機関による)。※金融機関事務手数料/66,000円(各金融機関による)。※団体信用生命保険/加入要。※当社事務手数料/110,000円(税込)。上記金利は2025年10月1日現在のものです。上記金利は一定の条件を満たす方の例です。※LDK19.12帖には、小上がり和室(DEN)3.57帖を含みます。※間取図・外構等は図面を基に描いたイメージにつき、実際とは一部異なる場合があります。※家具の表記はイメージ配置になり、実際には付きません。(2025年12月時点)

 

「ZEH水準」の省エネ住宅

フジ住宅の建物は【ZEH水準省エネ住宅】だから『住宅ローン減税』の対象となります。
BELS(ベルス)とは、第3者評価機関が評価し認定した『建築物省エネルギー性能』 をわかりやすく表示したものです。

第3者評価BELS

※「住宅ローン減税」について詳しくはこちらのサイトをご確認ください。※「BELS」について詳しくはこちらのサイトをご確認ください

 

MAP

モデルハウス案内図

物件名 ファンジュ和泉箕形町
所在地 大阪府和泉市箕形町1丁目25番3他
交通
アクセス
南海泉北線「和泉中央」駅まで徒歩27分
MAPCODE 10 457 749*21
見学予約はこちらから見学予約
※建物竣工は2026年4月頃となるためそれまでは現地のみのご見学となります。

分譲地を探す

エリア別ページをみる