富田林市寺池台/南海高野線「金剛」駅徒歩5分
※間取図・外構等は図面を基に描いたイメージにつき、実際とは一部異なる場合があります。※家具の表記はイメージ配置になり、実際には付きません。商品の改良や住環境の変化により実際とはことなる場合がございます。※2026年3月13日時点のものです。
心地よい暮らしを叶えるフジ住宅の新築戸建て「アイーナネオ」
資料請求受付開始!
心地よい暮らしを叶える
フジ住宅の新築戸建て「アイーナネオ」
資料請求受付開始!
新着情報
区画図

※掲載の全体区画図イメージイラストは図面を基に描き起こしたもので、イメージにつき実際とは異なります。また、行政の指導等により変更となる場合がございます。フェンス等は一部省略しております。

















- 限定2区画です。
- 特急や急行が停車する「金剛」駅まで徒歩5分!
- 前面の道幅が7m以上で駐車もらくらく!
- 充実した収納スペースがすっきり整った空間を保ちます!
- 並列で普通車2台の駐車スペースを確保!
- 家中の空気をクリーンに保つ「炭の家」!
- 住宅性能評価取得!耐震等級3!
- ZEH水準省エネ住宅です!
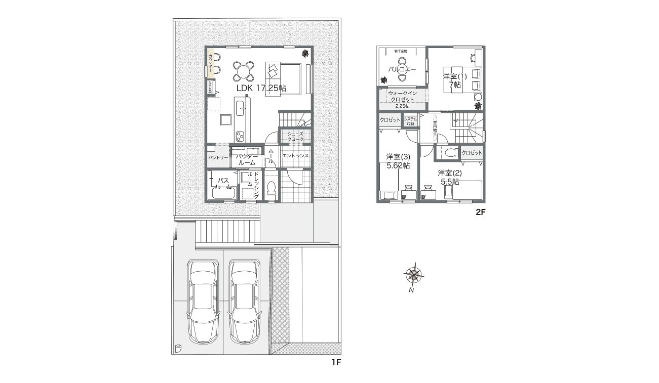
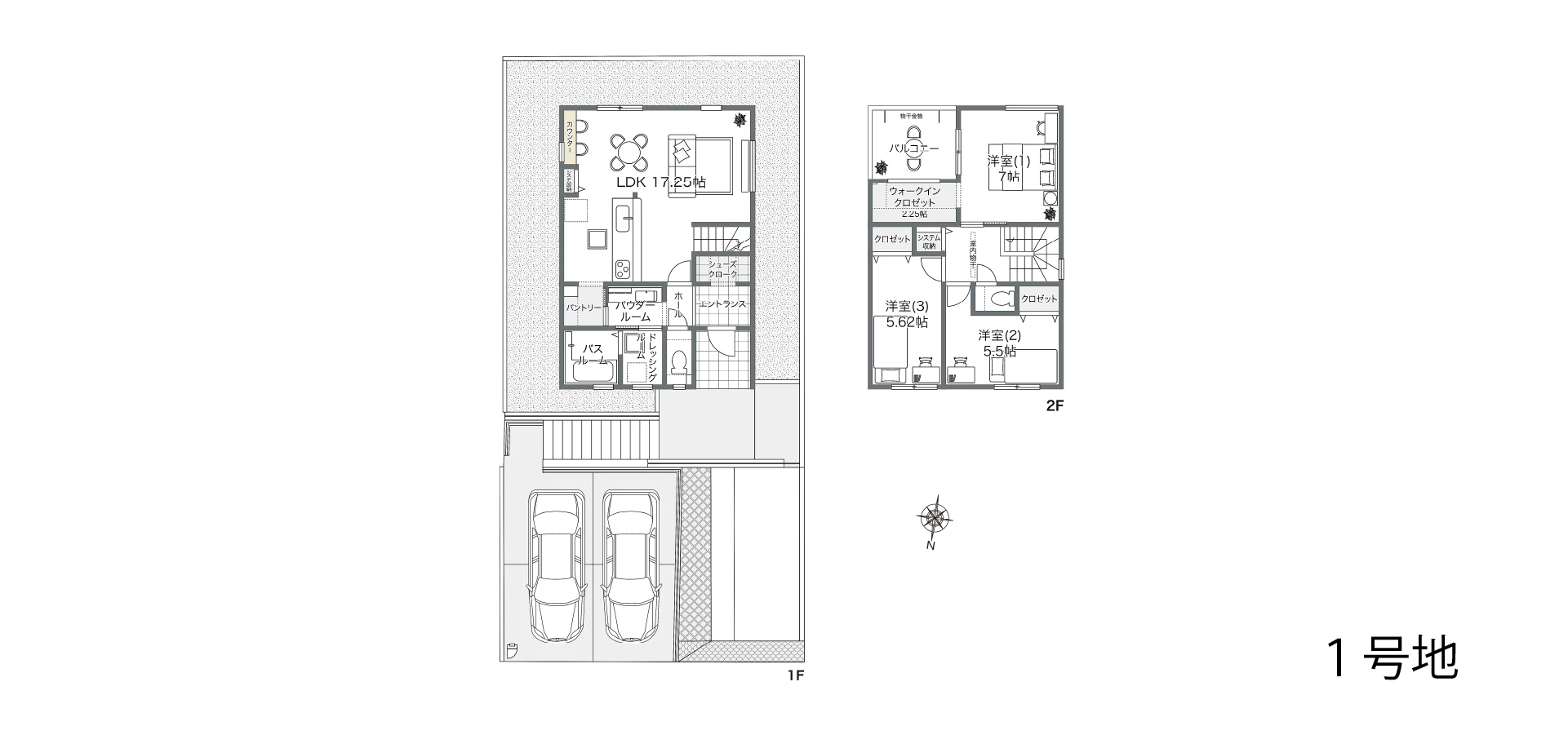
1号地 間取り



※間取図・外構等は図面を基に描いたイメージにつき、実際とは一部異なる場合があります。※家具の表記はイメージ配置になり、実際には付きません。商品の改良や住環境の変化により実際とはことなる場合がございます。※2026年3月13日時点のものです。
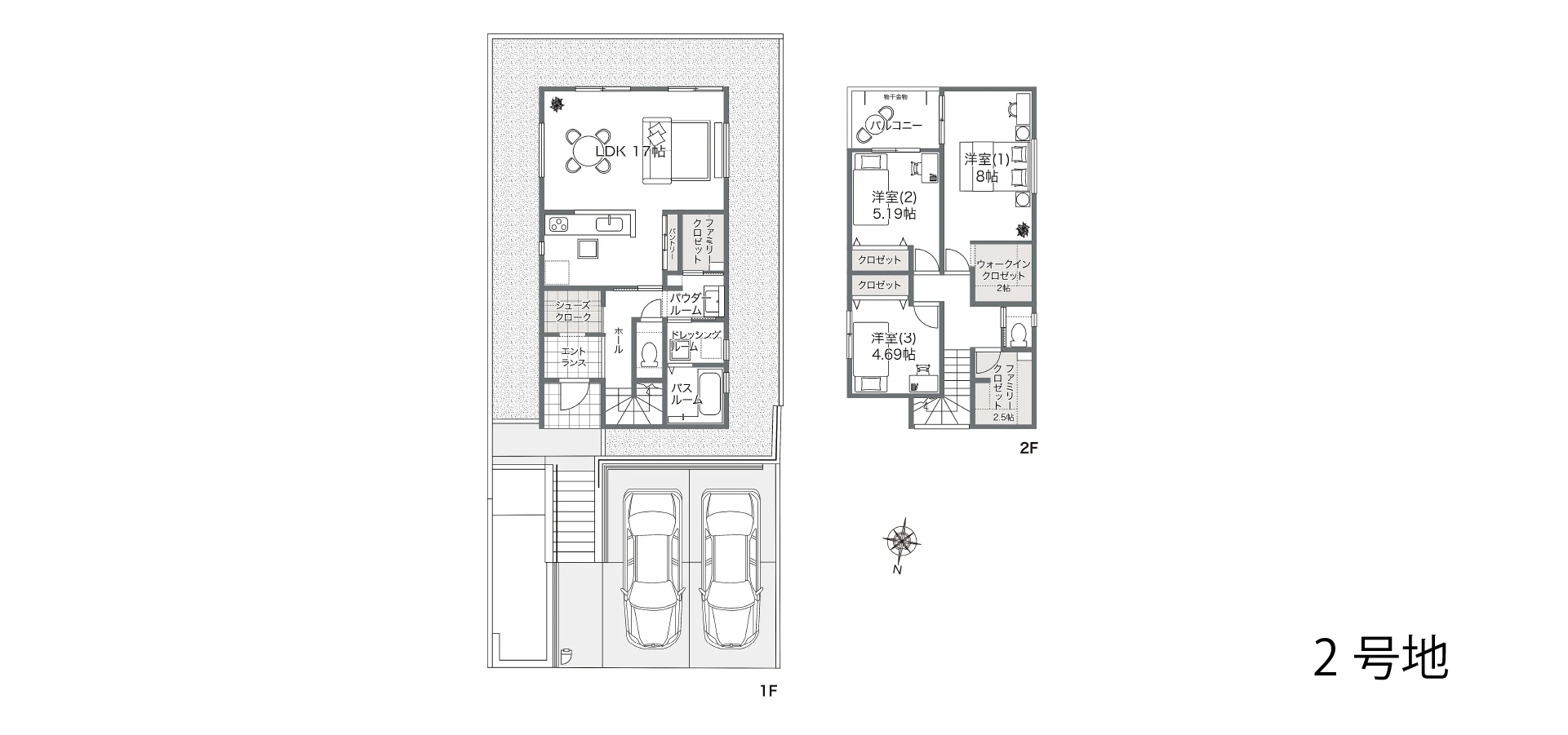
2号地 間取り



※間取図・外構等は図面を基に描いたイメージにつき、実際とは一部異なる場合があります。※家具の表記はイメージ配置になり、実際には付きません。商品の改良や住環境の変化により実際とはことなる場合がございます。※2026年3月13日時点のものです。
フジ住宅の家づくり
ずっと未来まで安全・安心・快適に暮らせる
理想の住まいを目指しました。
理想の住まいを目指しました。
ずっと未来まで安全・安心・快適に暮らせる
理想の住まいを目指しました。
理想の住まいを目指しました。
周辺環境
交通機関
-
南海高野線 金剛駅(急行・特急停車駅)360m 近鉄長野線 川西駅 3310m
ショッピング施設
-
金剛ショッピングモール 640m サンプラザ金剛店 680m そよら金剛(イオンスタイル金剛) 730m サンプラザ狭山店 1300m ファミリーマート大阪金剛駅前店 350m セブンイレブン大阪狭山半田5丁目店 690m サンドラッグ半田店 610m ドラッグストアコスモス金剛店 790m
教育施設
-
大阪芸術大学附属 金剛幼稚園 530m 金剛保育園 580m 伏山台幼稚園 850m 伏山台小学校 620m 金剛中学校 790m
医療機関
-
ふじわら内科クリニック 110m 中島医院(内科・呼吸器内科) 600m 児島医院(小児科・内科) 700m
公園・その他
-
寺池公園 100m 金剛中央公園 690m 金剛図書館 1890m 富田林市役所 4400m
金融機関
-
りそな銀行金剛支店 400m 富田林寺池台郵便局 580m 三井住友銀行そよら金剛店 780m
現地周辺図
物件概要
-
物件名称 アイーナネオ富田林寺池台 所在地 大阪府富田林市寺池台1丁目18-6、18-10 交通 南海高野線「金剛」駅まで徒歩5分
近鉄長野線「川西」駅まで徒歩42分
総区画数 2 区画 用途地域 第一種低層住居専用地域 地目 宅地 電気・ガス 関西電力・都市ガス 水道・排水 公営水道・公共下水道 道路幅員 7.9m(北側・市道42-1-1) 私道負担 なし 売主 フジ住宅株式会社
〒596-8588 大阪府岸和田市土生町1丁目4番23号
TEL:072-437-8700(代表) TEL:072-437-0601(お問合せ番号)
宅建免許/国土交通大臣(13)第2430号、建設業許可/国土交通大臣 許可(特-4)第26825号、 一級建築士事務所登録/大阪府知事登録(ハ)第24188号
(一社)大阪府宅地建物取引業協会正会員、(公社)近畿地区不動産公正取引協議会加盟販売概要【建売分譲概要】
販売価格 未定 外構・付帯工事費 販売価格に含む 間取り 1号地:3LDK+SC+WIC2号地:3LDK+SC+2FC+WIC 建物面積 1号地:92.76m2(28.05坪)2号地:100.21m2(30.31坪) 土地面積 1号地:174.42m2(52.76坪)2号地: 162.37m2(49.11坪) 建築確認番号 1号地:R08確認建築近確0003400号 2026年2月24日2号地:R08確認建築近確0003401号 2026年2月24日 販売スケジュール 2026年4月下旬予定 入居時期 完成後3ヵ月 構造・規模 木造2階建て 完成時期(築年月) 2026年6月 その他 炭の家 売主 フジ住宅株式会社 問い合わせ 0120-24-0413 ※諸費用/自治会費、登記費用、並びに住宅ローンご利用の方は利用するローンの規定と利用形態に応じた保証料・事務手数料及び火災保険料等が必要になります。 ※外構・付帯工事費には、消費税(10%)相当額が含まれます。 ※【予告広告】販売を開始するまでは、契約または予約のお申込みはできません。また、申込順位の確保に関する措置を講じる事はできません。予めご了承ください。すべての予定販売区画を一括して販売するか又は数期に分けて販売するかは確定しておりませんので、当該予告広告以降に行なう本広告において販売区画数を明示させていただきます。 ※FC=ファミリークロゼット、WIC=ウォークインクロゼット、SC=シューズクローク
※植栽工事につきましては、お引き渡し後に当社指定業者と打合せをして頂き、植栽箇所を決めて頂きます。尚、植樹を希望されない場合でも、返金等には応じかねます。
※契約・手続きの状況によってはご希望の時期にご入居出来ない場合もございますので事前に担当者にご確認ください。情報更新日
今回情報更新日 2026/03/12 次回情報更新日 2026/03/26
周辺の物件情報








お問合せ
資料請求
資料請求
電話する




