泉佐野市松原/JR関西空港線・南海空港線「りんくうタウン」駅まで徒歩13分
※間取図・外構等は図面をもとに描いたイメージにつき、実際とは一部異なる場合があります。家具・車の表記はイメージ配置になり、実際には付きません。(2026年1月時点)
便利で快適な暮らしが叶うフジ住宅の
新築一戸建て「アイーナネオ」
限定2棟!いよいよ 販売開始!
新着情報
- 【アイーナネオ泉佐野松原】新築一戸建て2棟、いよいよ2/28(土)販売開始!
区画図

※掲載の全体区画図イメージイラストは図面を基に描き起こしたもので、イメージにつき実際とは異なります。また、行政の指導等により変更となる場合がございます。フェンス等は一部省略しております。

※掲載の全体区画図イメージイラストは図面を基に描き起こしたもので、イメージにつき実際とは異なります。また、行政の指導等により変更となる場合がございます。フェンス等は一部省略しております。
- 限定2棟!
- 「りんくうタウン」駅まで徒歩13分!
- 特急や急行停車の「泉佐野」駅まで徒歩24分(自転車7分)!
- 普通車1台+軽1台の駐車スペースを確保!
- りんくうシークルやりんくうプレミアムアウトレットまで徒歩10分!
- 住宅性能評価取得!耐震等級3!
- フジ住宅の新築一戸建ては【ZEH水準省エネ住宅】だから「住宅ローン減税」の対象です!
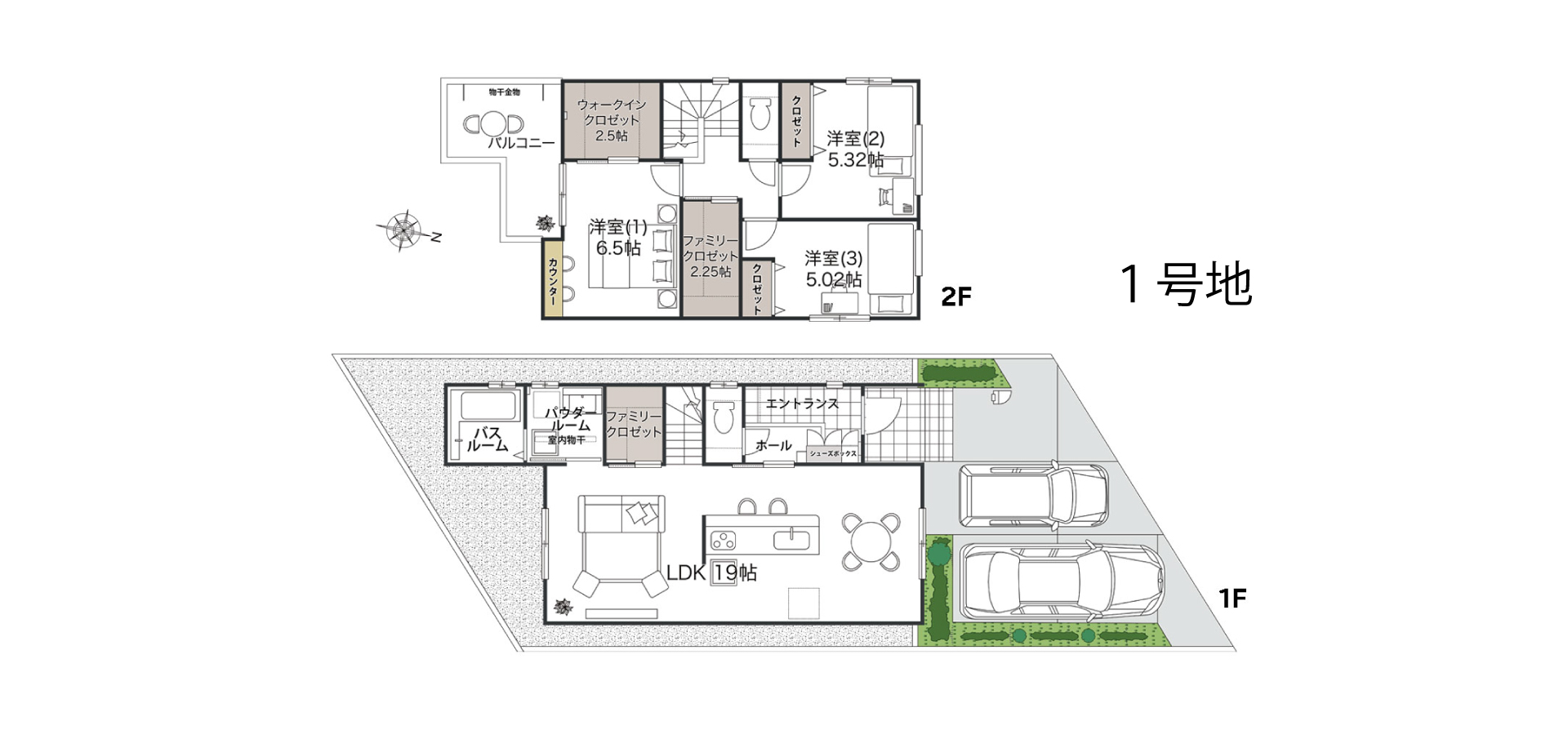
1号地間取り図





「ZEH水準」の省エネ住宅
フジ住宅の建物は【ZEH水準省エネ住宅】だから『住宅ローン減税』の対象となります。
BELS(ベルス)とは、第3者評価機関が評価し認定した『建築物省エネルギー性能』をわかりやすく表示したものです。

「ZEH水準」の省エネ住宅
フジ住宅の建物は【ZEH水準省エネ住宅】だから『住宅ローン減税』の対象となります。
BELS(ベルス)とは、第3者評価機関が評価し認定した『建築物省エネルギー性能』をわかりやすく表示したものです。

※40年返済での計算です。※当社提携銀行ローン0.87%/3,190万円の物件を頭金0円で3,190万円借入れの場合※月々返済/62,183円※ボーナス返済(年2回)/約10.0万円(1回分)※当社提携銀行ローン 年0.87%(変動金利)元利均等払い・現行金利3.075%から-2.205%優遇金利を適用した場合の計算例です。※金利は変更される場合があります。※融資限度額/購入価格が融資限度額(100万円以上2億円以内・10万円単位)。※融資限度額の割合/物件価格の最高110%以内(各金融機関による)。※銀行融資手数料/お借入金額 ×~2.2%(各金融機関による)。※金融機関事務手数料/66,000円(各金融機関による)。※団体信用生命保険/加入要。※当社事務手数料/110,000円(税込)。※上記金利は2026年2月1日時点のものです。上記金利は一定の条件を満たす方の例です。※販売価格には消費税(10%)相当額が含まれます。※販売価格には外構・付帯工事費が含まれます。※諸費用/自治会費、登記費用、並びに住宅ローンご利用の方は利用するローンの規定と利用形態に応じた保証料・事務手数料及び火災保険料等が必要になります。※間取図・外構等は図面を基に描いたイメージにつき、実際とは一部異なる場合があります。(2026年2月時点)※間取図の家具・車の表記はイメージ配置になり、実際には付きません。 ※FC=ファミリークロゼット、WIC=ウォークインクロゼット ※「住宅ローン減税」について詳しくはこちらのサイトをご確認ください。※「BELS」について詳しくはこちらのサイトをご確認ください。
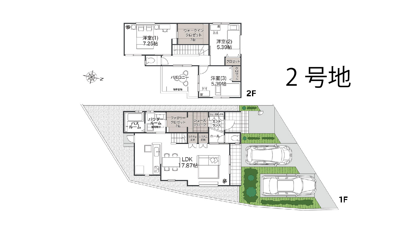
2号地間取り図





「ZEH水準」の省エネ住宅
フジ住宅の建物は【ZEH水準省エネ住宅】だから『住宅ローン減税』の対象となります。
BELS(ベルス)とは、第3者評価機関が評価し認定した『建築物省エネルギー性能』をわかりやすく表示したものです。

「ZEH水準」の省エネ住宅
フジ住宅の建物は【ZEH水準省エネ住宅】だから『住宅ローン減税』の対象となります。
BELS(ベルス)とは、第3者評価機関が評価し認定した『建築物省エネルギー性能』をわかりやすく表示したものです。

※40年返済での計算です。※当社提携銀行ローン0.87%/3,490万円の物件を頭金0円で3,490万円借入れの場合※月々返済/69,586円※ボーナス返済(年2回)/約10.0万円(1回分)※当社提携銀行ローン 年0.87%(変動金利)元利均等払い・現行金利3.075%から-2.205%優遇金利を適用した場合の計算例です。※金利は変更される場合があります。※融資限度額/購入価格が融資限度額(100万円以上2億円以内・10万円単位)。※融資限度額の割合/物件価格の最高110%以内(各金融機関による)。※銀行融資手数料/お借入金額 ×~2.2%(各金融機関による)。※金融機関事務手数料/66,000円(各金融機関による)。※団体信用生命保険/加入要。※当社事務手数料/110,000円(税込)。※上記金利は2026年2月1日時点のものです。上記金利は一定の条件を満たす方の例です。※販売価格には消費税(10%)相当額が含まれます。※販売価格には外構・付帯工事費が含まれます。※諸費用/自治会費、登記費用、並びに住宅ローンご利用の方は利用するローンの規定と利用形態に応じた保証料・事務手数料及び火災保険料等が必要になります。※間取図・外構等は図面を基に描いたイメージにつき、実際とは一部異なる場合があります。(2026年2月時点)※間取図の家具・車の表記はイメージ配置になり、実際には付きません。 ※FC=ファミリークロゼット、WIC=ウォークインクロゼット、SC=シューズクローク。※「住宅ローン減税」について詳しくはこちらのサイトをご確認ください。※「BELS」について詳しくはこちらのサイトをご確認ください。
フジ住宅の家づくり
理想の住まいを目指しました。
理想の住まいを目指しました。
周辺環境
-
JR関西空港線・南海空港線「りんくうタウン」駅 徒歩13分
-
業務スーパー泉佐野店 (710m) メガセンタートライアルりんくうタウン店 (1,230m) イオンタウン羽倉崎 (1,240m) セブンイレブンりんくう松原店 (590m) セブンイレブン泉佐野松原2丁目店 (650m) ウエルシア泉佐野羽倉崎店 (850m)
-
第一小学校 (1,700m) 佐野中学校 (500m) こだまこども園 (800m) すえひろこども園 (930m) 安松幼稚園 (2,210m)
-
羽原病院 (970m) 平野医院 (1,260m)
-
りそな銀行佐野支店 (1,860m)
-
マンデー末広公園 (1,100m)
※徒歩分数は80mを1分、自転車分数は300mを1分として算出(端数切り上げ)した概算分数です。信号待ち時間は含まれません。 ※道路距離は現地からの地図上での概測です。※アクセス・周辺環境のデータは2026年1月現在のものです。
現地周辺図
物件概要
-
物件名称 アイーナネオ泉佐野松原 所在地 大阪府泉佐野市松原2丁目2937-3、6 交通 JR関西空港線「りんくうタウン」駅まで徒歩13分
南海空港線「りんくうタウン」駅まで徒歩13分
南海本線「羽倉崎」駅まで徒歩15分、南海本線「泉佐野」駅まで徒歩24分
総区画数 2 区画 私道負担 なし 用途地域 準工業地域 地目 雑種地(宅地に変更予定) 道路幅員 5.0m(北西側・開発道路42-1-2) 建ペイ率 60% 容積率 200% 電気・ガス 関西電力・都市ガス 水道・排水 公営水道・公共下水 売主 フジ住宅株式会社
〒596-8588 大阪府岸和田市土生町1丁目4番23号
TEL:072-437-8700(代表) TEL:072-437-0601(お問合せ番号)
宅建免許/国土交通大臣(13)第2430号、建設業許可/国土交通大臣 許可(特-4)第26825号、 一級建築士事務所登録/大阪府知事登録(ハ)第24188号
(一社)大阪府宅地建物取引業協会正会員、(公社)近畿地区不動産公正取引協議会加盟販売概要【建売分譲概要】
販売戸数 2 戸 販売価格 1号地:3,190万円
2号地:3,490万円外構・付帯工事費 販売価格に含む 間取り 1号地:3LDK+2FC+WIC
2号地:3LDK+SC+FC+WIC建物面積 1号地:94.41㎡(28.55坪)
2号地:95.45㎡(28.87坪)土地面積 1号地:111.00㎡(33.57坪)
2号地:136.00㎡(41.14坪)建物竣工時期 2026年5月完成予定 建築確認番号 1号地:R07確認建築近確0002742号
2号地:R07確認建築近確0002735号販売スケジュール 先着順 入居時期 建物完成後3ヵ月 構造・規模 木造(在来軸組工法) 取引条件の有効期限 2026年4月14日 売主 フジ住宅株式会社 問い合わせ 0120-24-0413 ※諸費用/自治会費、登記費用、並びに住宅ローンご利用の方は利用するローンの規定と利用形態に応じた保証料・事務手数料及び火災保険料等が必要になります。 ※先着順につき、契約済の場合がございます。あらかじめご了承ください。 ※販売価格には外構・付帯工事費が含まれます。 ※販売価格には、消費税(10%)相当額が含まれます。 ※契約・手続きの状況によってはご希望の時期にご入居出来ない場合もございますので事前に担当者にご確認ください。 ※完成時期(築年月):建設中の場合は、建物が完成する時期を、完成済みの場合は建築された年月を表示しています。 ※FC=ファミリークロゼット、WIC=ウォークインクロゼット、SC=シューズクローク情報更新日
今回情報更新日 2026/04/08 次回情報更新日 2026/04/22
周辺の物件情報












お問合せ
資料請求
来場予約
資料請求
来場予約
電話する




