JR阪和線「熊取」駅まで徒歩10分
※外観パース・間取図・外構等は図面をもとに描いたイメージにつき、実際とは一部異なる場合があります。間取り図の家具・車の表記はイメージ配置になり、実際には付きません。(2025年11月時点)
心地よい暮らしを叶える
フジ住宅の新築戸建て「アイーナネオ」
熊取町大久保東に限定1戸登場!
心地よい暮らしを叶える
フジ住宅の新築戸建て「アイーナネオ」
熊取町大久保東に限定1戸登場!
新着情報
- 【アイーナネオ熊取大久保東】新築一戸建て1号地を11/22(土)より販売開始いたします♪
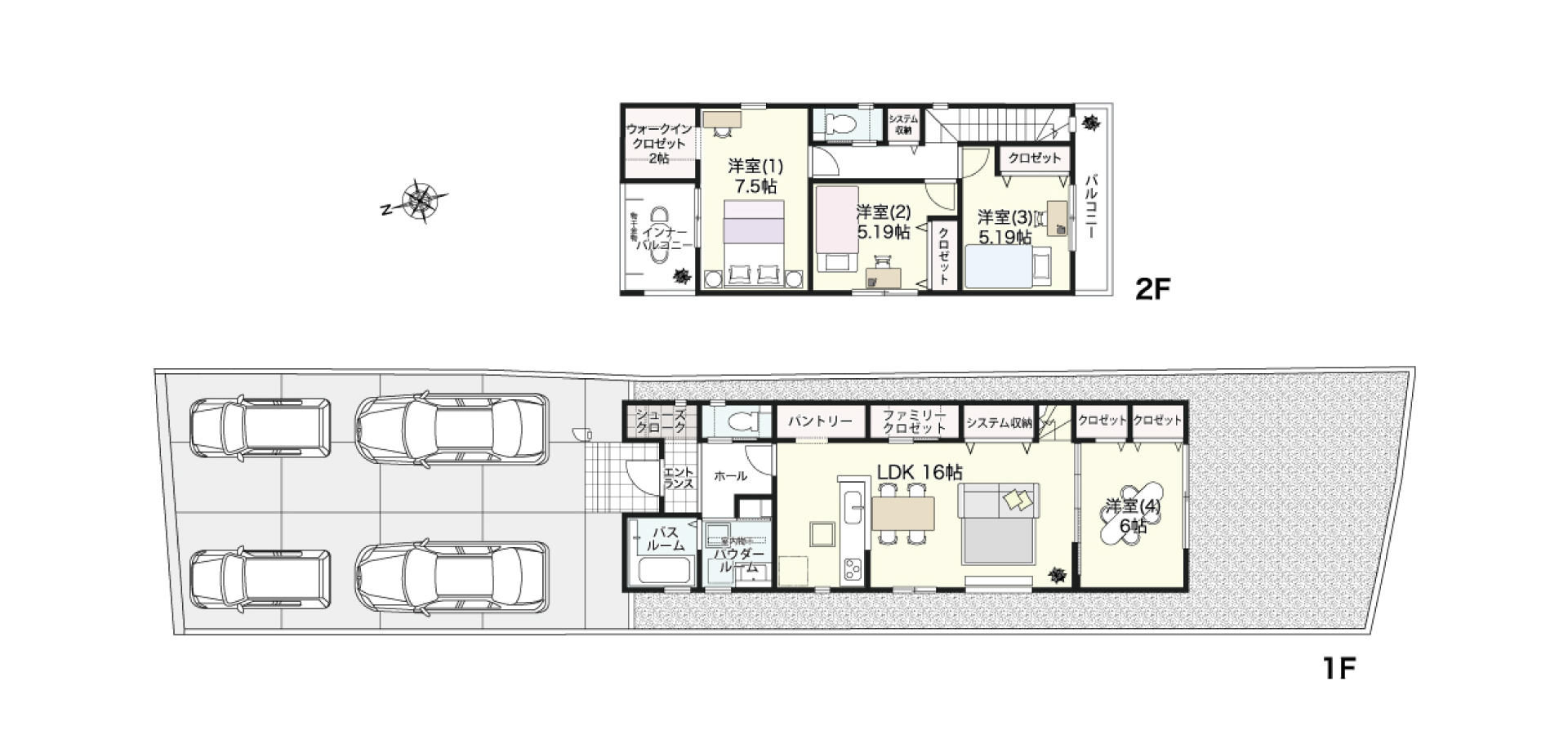
間取り

【アイーナネオ熊取大久保東】1号地|販売価格
土地面積
191.51㎡(57.93坪)
建物面積
105.18㎡(31.81坪)
販売価格(税込)
3,790.00万円
返済例
月々7万円台
3,790万円借入の場合
※40年返済での計算です。※当社提携銀行ローン0.87%/3,790万円の物件を頭金0円で3,790万円借入れの場合※月々返済/76,988円※ボーナス返済(年2回)/約10.0万円(1回分)※当社提携銀行ローン 年0.87%(変動金利)元利均等払い・現行金利3.075%から-2.205%優遇金利を適用した場合の計算例です。※金利は変更される場合があります。※融資限度額/購入価格が融資限度額(100万円以上2億円以内・10万円単位)。※融資限度額の割合/物件価格の最高110%以内(各金融機関による)。※銀行融資手数料/お借入金額 ×~2.2%(各金融機関による)。※金融機関事務手数料/66,000円(各金融機関による)。※団体信用生命保険/加入要。※当社事務手数料/110,000円(税込)。上記金利は2025年10月1日時点のものです。上記金利は一定の条件を満たす方の例です。※販売価格には消費税(10%)相当額が含まれます。※販売価格には外構・付帯工事費が含まれます。※諸費用/自治会費、登記費用、並びに住宅ローンご利用の方は利用するローンの規定と利用形態に応じた保証料・事務手数料及び火災保険料等が必要になります。※間取図・外構等は図面を基に描いたイメージにつき、実際とは一部異なる場合があります。(2025年11月時点) ※間取図の家具・車の表記はイメージ配置になり、実際には付きません。※土地面積191.51m2(57.93坪)には隣地越境による建確申請外面積0.82m2を含む。詳しくは係員にお問い合わせください。※FC=ファミリークロゼット、WIC=ウォークインクロゼット、SC=シューズクローク












「アイーナネオ熊取町大久保東」魅力をご紹介!
- 限定1区画です!
- 土地57坪超!ファミリーにぴったりの4LDKの間取り!
- おうちの空気をクリーンに保つフジ住宅の「炭の家」!
- 16帖LDKにはパントリーやファミリークロゼットなど収納が充実!
- リビングと隣接する洋室を開放すれば22帖の広々空間が実現!
- 7.5帖の主寝室には収納たっぷりのウォークインクロゼット!
- 普通車2台+軽2台分の駐車スペースあり!
- JR阪和線快速停車「熊取」駅まで徒歩10分!
- 生活施設が徒歩圏内に揃う暮らしやすい住環境!
- 住宅性能評価取得!耐震等級3!
- フジ住宅の新築一戸建ては【ZEH水準省エネ住宅】だから「住宅ローン減税」の対象です!
- 安心の外構工事費・税込みの価格です!
「ZEH水準」の省エネ住宅
フジ住宅の建物は【ZEH水準省エネ住宅】だから『住宅ローン減税』の対象となります。
BELS(ベルス)とは、第3者評価機関が評価し認定した『建築物省エネルギー性能』をわかりやすく表示したものです。

「ZEH水準」の省エネ住宅
フジ住宅の建物は【ZEH水準省エネ住宅】だから『住宅ローン減税』の対象となります。
BELS(ベルス)とは、第3者評価機関が評価し認定した『建築物省エネルギー性能』をわかりやすく表示したものです。

※「住宅ローン減税」について詳しくはこちらのサイトをご確認ください。※「BELS」について詳しくはこちらのサイトをご確認ください。
周辺環境
子育てに嬉しい便利な施設も充実のロケーション。
-
JR阪和線「熊取」駅 徒歩10分
-
キリン堂熊取店(270m) セブンイレブン熊取大久保店(390m) 万代熊取店 (660m) マツゲン熊取五門店(840m) サンディ熊取店 (960m)
-
西小学校 (820m) 熊取中学校 (1,060m) フレンド幼稚園(210m) 中央保育所(290m)
-
永山病院 (400m) のざき医院(550m) とくおか循環器・内科クリニック (560m)
-
熊取郵便局(620m)
-
熊取歴史公園(370m)
現地周辺図
フジ住宅の家づくり
ずっと未来まで安全・安心・快適に暮らせる
理想の住まいを目指しました。
物件概要
-
物件名称 アイーナネオ熊取大久保東 所在地 大阪府泉南郡熊取町大久保東1丁目48-1、808-1 交通 JR阪和線 「熊取」駅まで徒歩10分
総区画数 1 区画 用途地域 第一種住居地域 地目 宅地 建ペイ率 60% 容積率 200% 電気・ガス 関西電力・都市ガス 水道・排水 公営水道・公共下水 道路幅員 北 6.79m 私道負担 無し 宅地面積 191.51m2(57.93坪)(公簿)※隣地越境による建確申請外面積0.82m2を含む。 その他 市街化区域 売主 フジ住宅株式会社
〒596-8588 大阪府岸和田市土生町1丁目4番23号
TEL:072-437-8700(代表) TEL:072-437-0601(お問合せ番号)
宅建免許/国土交通大臣(13)第2430号、建設業許可/国土交通大臣 許可(特-4)第26825号、 一級建築士事務所登録/大阪府知事登録(ハ)第24188号
(一社)大阪府宅地建物取引業協会正会員、(公社)近畿地区不動産公正取引協議会加盟販売概要【建売分譲概要】
販売戸数 1 戸 販売価格 3,790万円(税込) 外構・付帯工事費 販売価格に含む 間取り 4LDK+FC+WIC+SC 建物面積 105.18㎡ (31.81坪) 土地面積 191.51m2(57.93坪)※隣地越境による建確申請外面積0.82m2を含む。 完成時期(築年月) 2026年2月 建築確認番号 第R07確認建築近確0001438号(2025年8月21日) 販売スケジュール 先着順 入居時期 完成後3ヶ月 構造・規模 木造 2階建 売主 フジ住宅株式会社 問い合わせ 0120-24-0413 ※諸費用/自治会費、登記費用、並びに住宅ローンご利用の方は利用するローンの規定と利用形態に応じた保証料・事務手数料及び火災保険料等が必要になります。 ※先着順につき、契約済の場合がございます。あらかじめご了承ください。 ※契約・手続きの状況によってはご希望の時期にご入居出来ない場合もございますので事前に担当者にご確認ください。
※販売価格には外構・付帯工事費が含まれます。
※販売価格には、消費税(10%)相当額が含まれます。
※FC=ファミリークロゼット、WIC=ウォークインクロゼット、SC=シューズクローク
※完成時期(築年月)建設中の場合は、建物が完成する時期を、完成済みの場合は建築された年月を表示しています。情報更新日
今回情報更新日 2025/12/26 次回情報更新日 2026/01/09
周辺の物件情報









お問合せ
資料請求
来場予約
資料請求
来場予約
電話する




