泉佐野市羽倉崎上町/南海本線「羽倉崎」駅 徒歩4分
※間取図・外構等は図面をもとに描いたイメージにつき、実際とは一部異なる場合があります。家具・車の表記はイメージ配置になり、実際には付きません。(2025年10月時点)
便利で快適な暮らしが叶うフジ住宅の
新築一戸建て「アイーナネオ」
限定2棟!
資料請求・ご見学予約受付中!
新着情報
- NEW 【アイーナネオ泉佐野羽倉崎】新築一戸建て2号地が11/29(土)より販売開始いたします!
- NEW 【アイーナネオ泉佐野羽倉崎】新築一戸建て1号地が11/29(土)より販売開始いたします!
- 【アイーナネオ泉佐野羽倉崎】限定2棟が新登場♪資料請求受付開始いたします!
区画図

- 間口が広く、並列に普通車2台駐車OK!
- 家中の空気をきれいに保つ「炭の家」!
- 各所に収納が充実した間取りです!
- 主寝室に広々ウォークインクロゼットを設置!
- マンデー末広公園まで徒歩9分!子育てファミリーにもうれしい立地!
- 住宅性能評価取得!耐震等級3!
- フジ住宅の新築一戸建ては【ZEH水準省エネ住宅】だから「住宅ローン減税」の対象です!
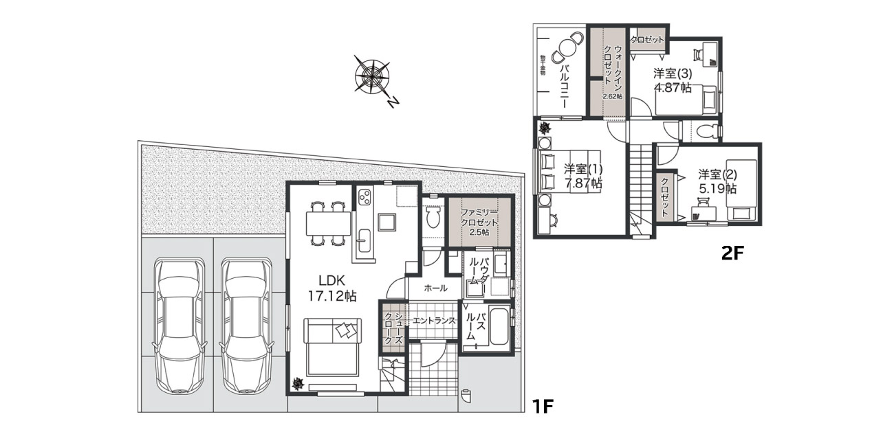
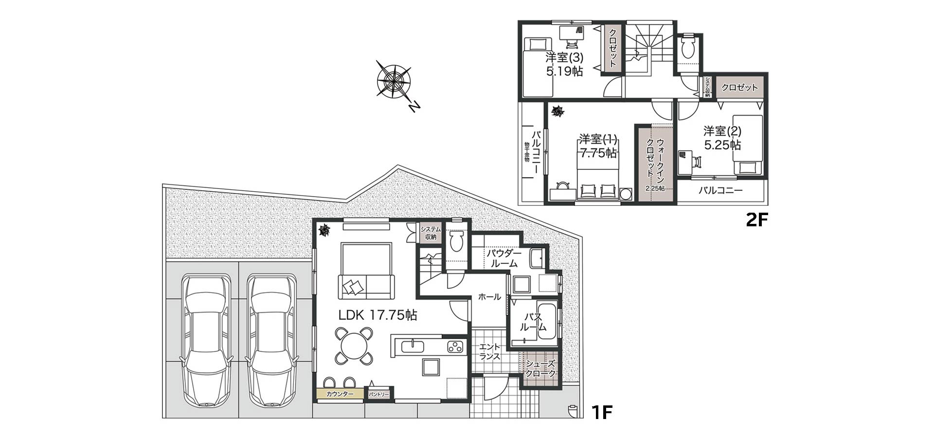
1号地間取り図








「ZEH水準」の省エネ住宅
フジ住宅の建物は【ZEH水準省エネ住宅】だから『住宅ローン減税』の対象となります。
BELS(ベルス)とは、第3者評価機関が評価し認定した『建築物省エネルギー性能』をわかりやすく表示したものです。

「ZEH水準」の省エネ住宅
フジ住宅の建物は【ZEH水準省エネ住宅】だから『住宅ローン減税』の対象となります。
BELS(ベルス)とは、第3者評価機関が評価し認定した『建築物省エネルギー性能』をわかりやすく表示したものです。

※40年返済での計算です。※当社提携銀行ローン0.87%/3,330万円の物件を頭金0円で3,330万円借入れの場合※月々返済/65,638円※ボーナス返済(年2回)/約10.0万円(1回分)※当社提携銀行ローン 年0.87%(変動金利)元利均等払い・現行金利3.075%から-2.205%優遇金利を適用した場合の計算例です。※金利は変更される場合があります。※融資限度額/購入価格が融資限度額(100万円以上2億円以内・10万円単位)。※融資限度額の割合/物件価格の最高110%以内(各金融機関による)。※銀行融資手数料/お借入金額 ×~2.2%(各金融機関による)。※金融機関事務手数料/66,000円(各金融機関による)。※団体信用生命保険/加入要。※当社事務手数料/110,000円(税込)。※上記金利は2025年10月1日時点のものです。上記金利は一定の条件を満たす方の例です。※販売価格には消費税(10%)相当額が含まれます。※販売価格には外構・付帯工事費が含まれます。※諸費用/自治会費、登記費用、並びに住宅ローンご利用の方は利用するローンの規定と利用形態に応じた保証料・事務手数料及び火災保険料等が必要になります。※間取図・外構等は図面を基に描いたイメージにつき、実際とは一部異なる場合があります。(2025年10月時点)※間取図の家具・車の表記はイメージ配置になり、実際には付きません。 ※FC=ファミリークロゼット、WIC=ウォークインクロゼット、SC=シューズクローク。※「住宅ローン減税」について詳しくはこちらのサイトをご確認ください。※「BELS」について詳しくはこちらのサイトをご確認ください。
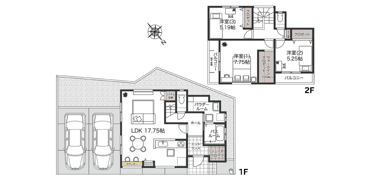
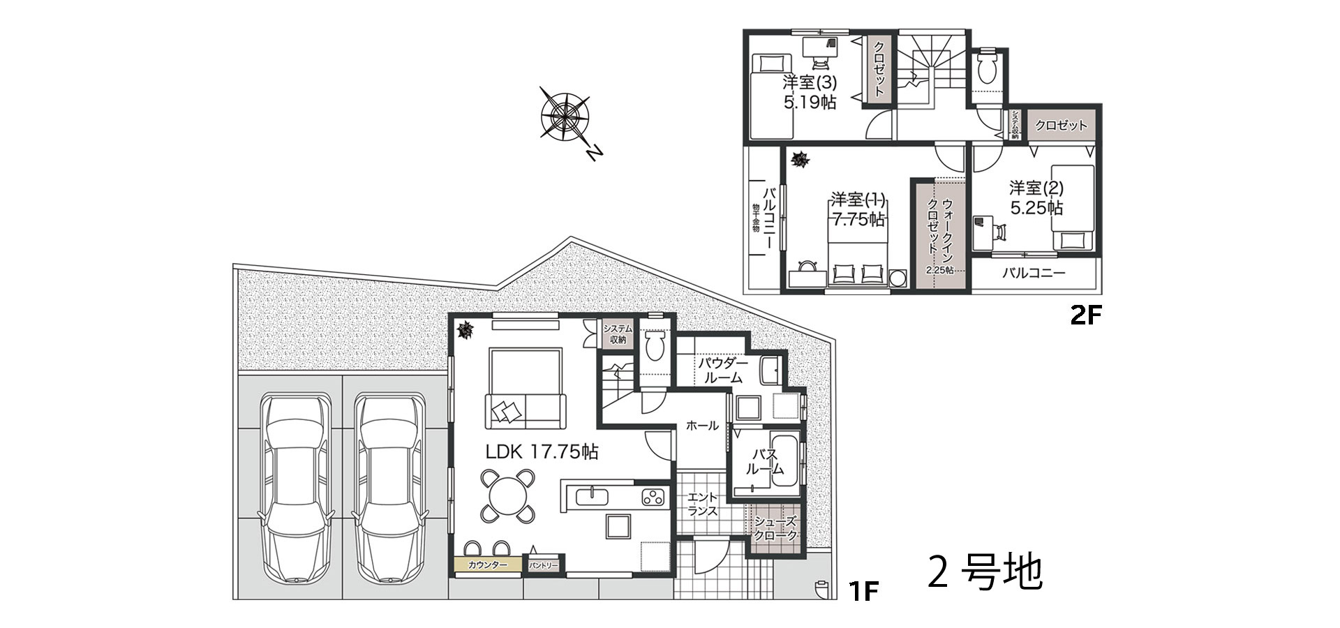
2号地間取り図








「ZEH水準」の省エネ住宅
フジ住宅の建物は【ZEH水準省エネ住宅】だから『住宅ローン減税』の対象となります。
BELS(ベルス)とは、第3者評価機関が評価し認定した『建築物省エネルギー性能』をわかりやすく表示したものです。

「ZEH水準」の省エネ住宅
フジ住宅の建物は【ZEH水準省エネ住宅】だから『住宅ローン減税』の対象となります。
BELS(ベルス)とは、第3者評価機関が評価し認定した『建築物省エネルギー性能』をわかりやすく表示したものです。

※40年返済での計算です。※当社提携銀行ローン0.87%/3,290万円の物件を頭金0円で3,290万円借入れの場合※月々返済/64,651円※ボーナス返済(年2回)/約10.0万円(1回分)※当社提携銀行ローン 年0.87%(変動金利)元利均等払い・現行金利3.075%から-2.205%優遇金利を適用した場合の計算例です。※金利は変更される場合があります。※融資限度額/購入価格が融資限度額(100万円以上2億円以内・10万円単位)。※融資限度額の割合/物件価格の最高110%以内(各金融機関による)。※銀行融資手数料/お借入金額 ×~2.2%(各金融機関による)。※金融機関事務手数料/66,000円(各金融機関による)。※団体信用生命保険/加入要。※当社事務手数料/110,000円(税込)。※上記金利は2025年10月1日時点のものです。上記金利は一定の条件を満たす方の例です。※販売価格には消費税(10%)相当額が含まれます。※販売価格には外構・付帯工事費が含まれます。※諸費用/自治会費、登記費用、並びに住宅ローンご利用の方は利用するローンの規定と利用形態に応じた保証料・事務手数料及び火災保険料等が必要になります。※間取図・外構等は図面を基に描いたイメージにつき、実際とは一部異なる場合があります。(2025年10月時点)※間取図の家具・車の表記はイメージ配置になり、実際には付きません。 ※FC=ファミリークロゼット、WIC=ウォークインクロゼット、SC=シューズクローク。※「住宅ローン減税」について詳しくはこちらのサイトをご確認ください。※「BELS」について詳しくはこちらのサイトをご確認ください。
フジ住宅の家づくり
理想の住まいを目指しました。
理想の住まいを目指しました。
周辺環境
-
南海本線「羽倉崎」駅 徒歩4分
-
マックスバリュ羽倉崎店(830m) 業務スーパー泉佐野店(1440m) 松源長滝店(1640m) ファミリーマート泉佐野羽倉崎店(320m) セブンイレブン泉佐野南中安松店(740m) ウエルシア泉佐野羽倉崎店(610m) りんくうプレミアムアウトレット(1430m) りんくうプレジャータウン シークル(1730m)
-
末広小学校 (1110m) 佐野中学校 (970m) すえひろこども園 (750m) 安松幼稚園 (1000m)
-
平野医院 (320m) 羽原病院 (480m) 浅井クリニック (790m)
※徒歩分数は80mを1分、自転車分数は300mを1分として算出(端数切り上げ)した概算分数です。信号待ち時間は含まれません。 ※道路距離は現地からの地図上での概測です。※アクセス・周辺環境のデータは2025年10月現在のものです。
現地周辺図
物件概要
-
物件名称 アイーナネオ泉佐野羽倉崎 所在地 大阪府泉佐野市羽倉崎上町3274-27、3274-28 交通 南海本線「羽倉崎」駅まで徒歩4分
総区画数 2 区画 用途地域 第二種中高層住居専用地域 地目 宅地 建ペイ率 60% 容積率 200% 電気・ガス 関西電力・都市ガス 水道・排水 公営水道・個別浄化槽 道路幅員 6.0m(北東側・開発道路42-1-2) 私道負担 無し 宅地面積 115.25㎡ (34.86坪) ・ 115.93㎡ (35.06坪) 売主 フジ住宅株式会社
〒596-8588 大阪府岸和田市土生町1丁目4番23号
TEL:072-437-8700(代表) TEL:072-437-0601(お問合せ番号)
宅建免許/国土交通大臣(13)第2430号、建設業許可/国土交通大臣 許可(特-4)第26825号、 一級建築士事務所登録/大阪府知事登録(ハ)第24188号
(一社)大阪府宅地建物取引業協会正会員、(公社)近畿地区不動産公正取引協議会加盟販売概要【建売分譲概要】
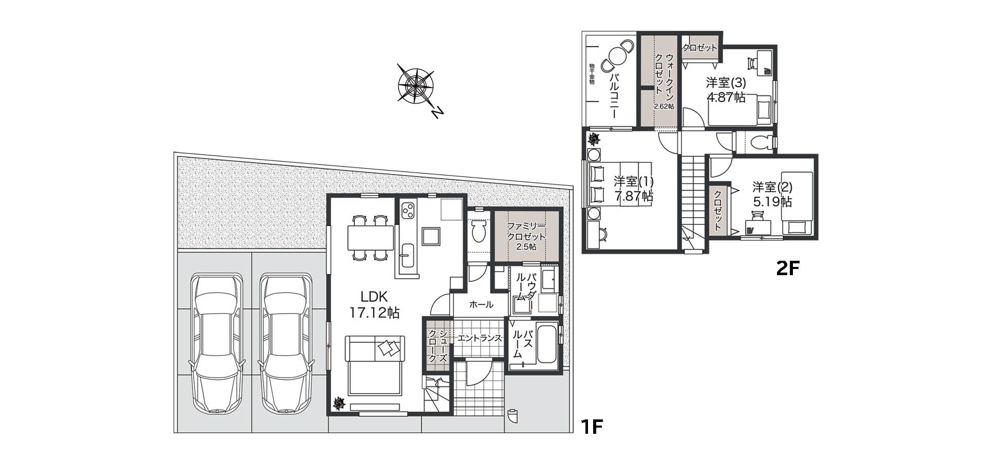
区画名称 アイーナネオ泉佐野羽倉崎 販売戸数 2 戸 販売価格 1号地:3,330万円(税込)2号地:3,290万円(税込) 建物面積 1号地:91.52m2(27.68坪)2号地:94.62m2(28.62坪) 土地面積 1号地:115.93m2(35.06坪)2号地:115.25m2(34.86坪) 完成時期(築年月) 2026年1月 建築確認番号 1号地:R07確認建築近確0001685号 2025年9月9日2号地:R07確認建築近確0001684号 2025年9月11日 販売スケジュール 先着順 入居時期 建物完成後3ヵ月 構造・規模 木造2階建て 取引条件の有効期限 2025年12月2日 ※諸費用/自治会費、登記費用、並びに住宅ローンご利用の方は利用するローンの規定と利用形態に応じた保証料・事務手数料及び火災保険料等が必要になります。 ※先着順につき、契約済の場合がございます。あらかじめご了承ください。 ※外構・付帯工事費には、消費税(10%)相当額が含まれます。
※植栽工事につきましては、お引き渡し後に当社指定業者と打合せをして頂き、植栽箇所を決めて頂きます。尚、植樹を希望されない場合でも、返金等には応じかねます。情報更新日
今回情報更新日 2025/11/28 次回情報更新日 2025/12/12
周辺の物件情報












お問合せ
資料請求
来場予約
資料請求
来場予約
電話する




