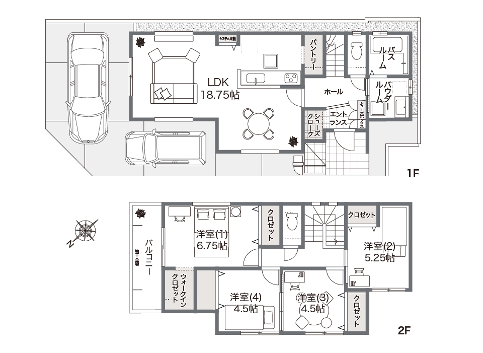
4LDK+WIC+SC
| 敷地面積 | 100.89㎡ (30.51坪) |
延べ床面積 | 101.45㎡ (30.68坪) |
| 1F面積 | 49.69㎡ (15.03坪) |
2F面積 | 51.76㎡ (15.65坪) |
モデルハウスを探す-
トップに戻る
| 敷地面積 | 100.89㎡ (30.51坪) |
延べ床面積 | 101.45㎡ (30.68坪) |
| 1F面積 | 49.69㎡ (15.03坪) |
2F面積 | 51.76㎡ (15.65坪) |
40年返済での計算です。※当社提携銀行ローン0.87%/3,160万円の物件を頭金0円で3,160万円借入れの場合 ※月々返済/68,105円 ※ボーナス返済(年2回)/約6万円(1回分)※当社提携銀行ローン 年0.87%(変動金利)元利均等払い・現行金利3.075%から-2.205%優遇金利を適用した場合の計算例です。※金利は変更される場合があります。※融資限度額/購入価格が融資限度額(100万円以上2億円以内・10万円単位)。※融資限度額の割合/物件価格の最高110%以内(各金融機関による)。※銀行融資手数料/お借入金額 ×~2.2%(各金融機関による)。※金融機関事務手数料/66,000円(各金融機関による)。※団体信用生命保険/加入要。※当社事務手数料/110,000円(税込)。※上記金利は2025年10月1日時点のものです。上記金利は一定の条件を満たす方の例です。※販売価格に外構・付帯工事費が含まれます。※価格には消費税(10%)が含まれます。※掲載の間取り・外構は図面に描き起こしたイメージにつき、実際とは一部異なる場合があります(2025年12月時点)。
フジ住宅の建物は【ZEH水準省エネ住宅】だから『住宅ローン減税』の対象となります。
BELS(ベルス)とは、第3者評価機関が評価し認定した『建築物省エネルギー性能』 をわかりやすく表示したものです。

モデルハウス案内図
| 物件名 | ファンジュ岸和田南町 |
| 所在地 | 大阪府岸和田市南町1663番 |
| 交通 アクセス |
南海本線「蛸地蔵」駅まで 徒歩3分 |
| MAPCODE | 106 734 377*62 |