岸和田市土生町/JR阪和線「東岸和田」駅 徒歩18分
※間取図・外構等は図面をもとに描いたイメージにつき、実際とは一部異なる場合があります。家具・車の表記はイメージ配置になり、実際には付きません。(2025年10月時点)
岸和田土生町に新築一建て登場!
資料請求・ご来場予約受付中です!
岸和田土生町に新築一建て登場!
資料請求・ご来場予約受付中です!
※建物竣工は2026年1月頃となるためそれまでは現地のみのご見学となります。
新着情報
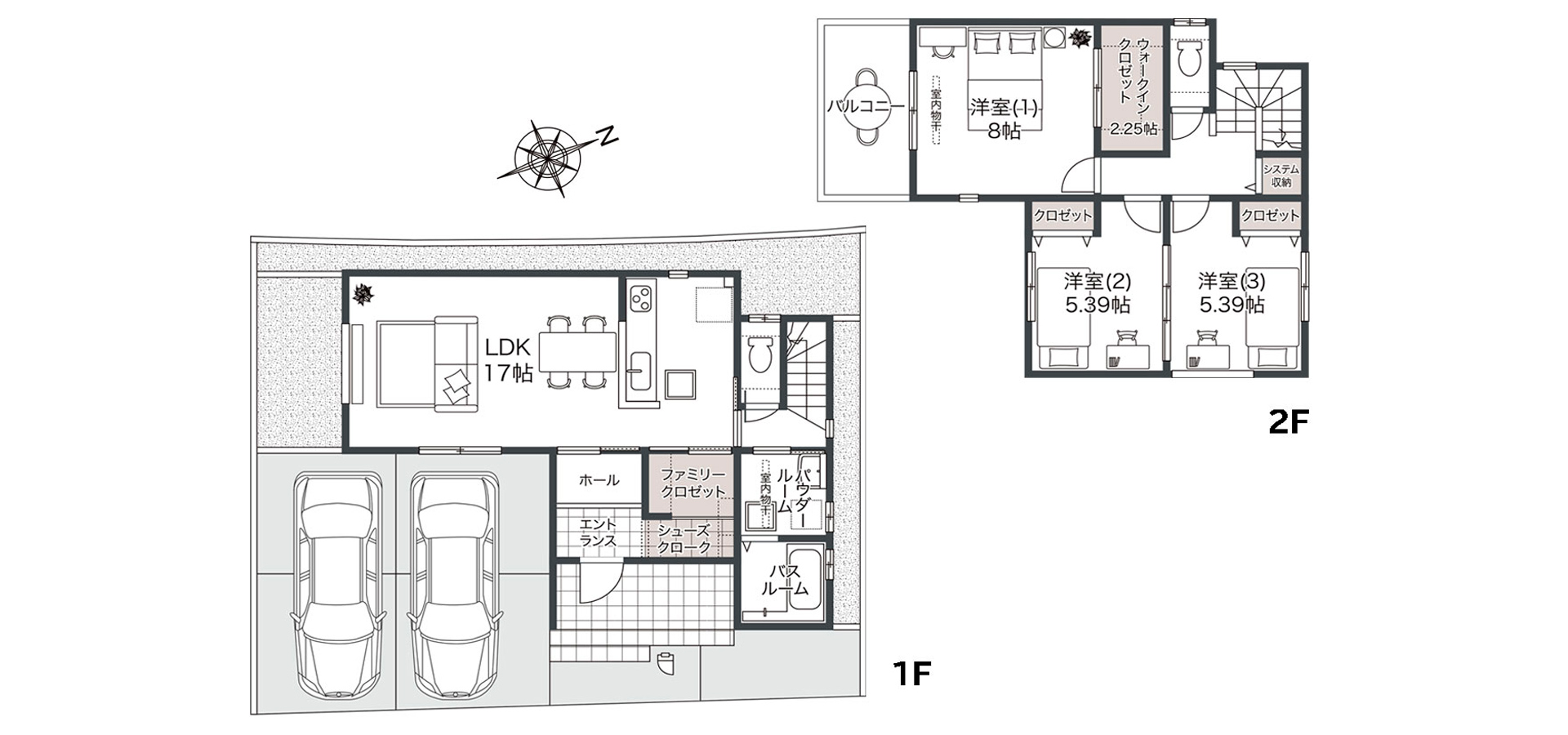
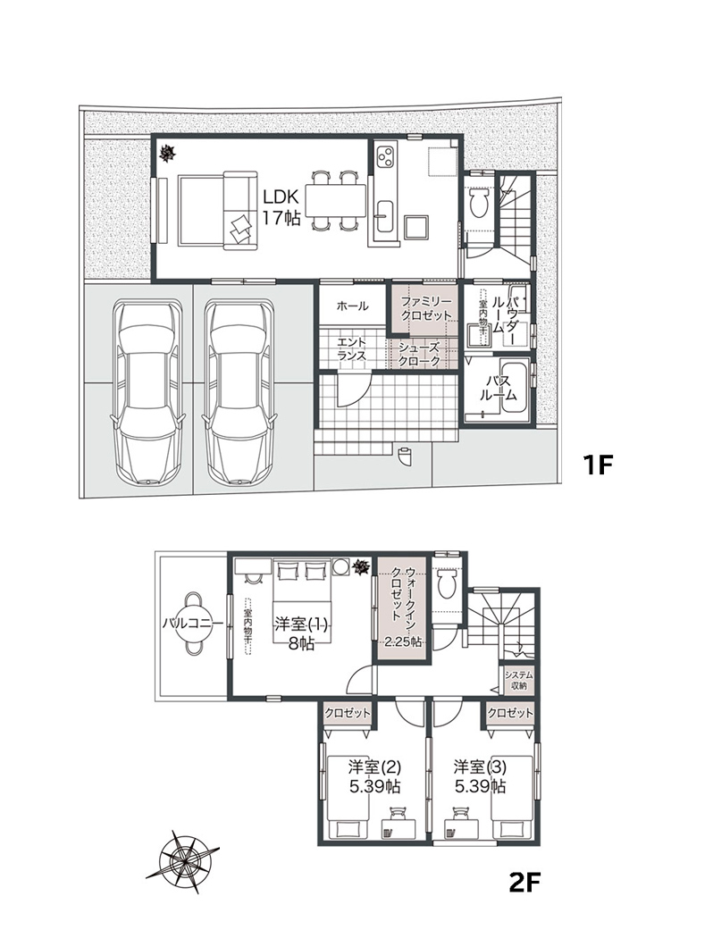
間取り


【アイーナネオ岸和田土生町Ⅱ】販売価格
土地面積
115.87㎡(35.05坪)
建物面積
94.41㎡(28.55坪)
販売価格(税込)
3,190.00万円
返済例
月々6万円台
3,190万円借入の場合
※40年返済での計算です。※当社提携銀行ローン0.87%/3,190万円の物件を頭金0円で3,190万円借入れの場合 ※月々返済/62,183円 ※ボーナス返済(年2回)/約10万円(1回分)※当社提携銀行ローン 年0.87%(変動金利)元利均等払い・現行金利3.075%から-2.205%優遇金利を適用した場合の計算例です。※金利は変更される場合があります。※融資限度額/購入価格が融資限度額(100万円以上2億円以内・10万円単位)。※融資限度額の割合/物件価格の最高110%以内(各金融機関による)。※銀行融資手数料/お借入金額 ×~2.2%(各金融機関による)。※金融機関事務手数料/66,000円(各金融機関による)。※団体信用生命保険/加入要。※当社事務手数料/110,000円(税込)。※上記金利は2025年10月1日時点のものです。上記金利は一定の条件を満たす方の例です。※販売価格に外構・付帯工事費が含まれます。※価格には消費税(10%)が含まれます。※掲載の間取り・外構は図面に描き起こしたイメージにつき、実際とは一部異なる場合があります(2025年10月時点)。※家具の表記はイメージにつき、実際には付きません。※WIC=ウォークインクロゼット、SC=シューズクローク、FC=ファミリークロゼット ※詳しくは係員にお問い合わせください。※1F床面積:48.03㎡(14.52坪)、2F床面積:46.38㎡(14.02坪)
- シューズクローク+ファミリークロゼットですっきり整うエントランス!
- 家族が集まるLDKはゆとりの17帖!
- 8帖のゆったりとした主寝室は広々ウォークインクロゼット付き!
- 普通車2台分の駐車スペースあり!
- ◆住宅性能評価取得!耐震等級3!

「ZEH水準」の省エネ住宅
フジ住宅の建物は【ZEH水準省エネ住宅】だから『住宅ローン減税』の対象となります。
BELS(ベルス)とは、第3者評価機関が評価し認定した『建築物省エネルギー性能』をわかりやすく表示したものです。

「ZEH水準」の省エネ住宅
フジ住宅の建物は【ZEH水準省エネ住宅】だから『住宅ローン減税』の対象となります。
BELS(ベルス)とは、第3者評価機関が評価し認定した『建築物省エネルギー性能』をわかりやすく表示したものです。

フジ住宅の家づくり
理想の住まいを目指しました。
理想の住まいを目指しました。
周辺環境
-
JR阪和線「東岸和田」駅 徒歩18分
-
ミニストップ岸和田星和台店 (540m) ウエルシア岸和田神須屋店 (680m) オークワ岸和田八田店 (1,050m) サンディ東岸和田店 (1,200m) スーパーサンエー東岸和田店 (1,270m) そよら東岸和田 (1,520m) ミラモール東岸和田駅前店 (1,520m)
-
旭小学校 (620m) 土生中学校 (490m)
-
前田内科クリニック (540m) 坂本内科小児科医院 (750m) リハーブ東岸和田(東岸和田市民センター) (1,350m)
※徒歩分数は80mを1分、自転車分数は300mを1分として算出(端数切り上げ)した概算分数です。信号待ち時間は含まれません。 ※道路距離は現地からの地図上での概測です。 ※アクセス・周辺環境のデータは2025年10月現在のものです。
現地周辺図
物件概要
-
物件名称 アイーナネオ岸和田土生町Ⅱ 所在地 大阪府岸和田市土生町13丁目688-4 交通 JR阪和線「東岸和田」駅まで徒歩 18分
総区画数 1 区画 用途地域 第一種住居地域 地目 宅地 電気・ガス 関西電力・都市ガス 水道・排水 公営水道・公共下水道 私道負担 私道負担無し その他 準防火地域、 売主 フジ住宅株式会社
〒596-8588 大阪府岸和田市土生町1丁目4番23号
TEL:072-437-8700(代表) TEL:072-437-0601(お問合せ番号)
宅建免許/国土交通大臣(13)第2430号、建設業許可/国土交通大臣 許可(特-4)第26825号、 一級建築士事務所登録/大阪府知事登録(ハ)第24188号
(一社)大阪府宅地建物取引業協会正会員、(公社)近畿地区不動産公正取引協議会加盟販売概要【建売分譲概要】
販売戸数 1 戸 販売価格 3190万円 外構・付帯工事費 販売価格に含む 間取り 3LDK+WIC +SC+FC 建物面積 94.41m2 (28.55坪) 土地面積 115.87m2(35.05坪) 建築確認番号 第R07確認建築近確0001392号(2025年8月18日) 販売スケジュール 先着順 入居時期 完成後3ヶ月 構造・規模 木造2階建 完成時期(築年月) 2025年12月 取引条件の有効期限 2026年1月27日 その他 ※土地面積には隣地越境による建確申請外面積0.04㎡と共有塀による建確申請外面積1.19㎡を含む。 売主 フジ住宅株式会社 問い合わせ 0120-24-0413 ※諸費用/自治会費、登記費用、並びに住宅ローンご利用の方は利用するローンの規定と利用形態に応じた保証料・事務手数料及び火災保険料等が必要になります。 ※先着順につき、契約済の場合がございます。あらかじめご了承ください。 ※契約・手続きの状況によってはご希望の時期にご入居出来ない場合もございますので事前に担当者にご確認ください。
※販売価格には外構・付帯工事費が含まれます。
※販売価格には、消費税(10%)相当額が含まれます。
※WIC=ウォークインクロゼット、SC=シューズクローク、FC=ファミリークロゼット
※完成時期(築年月)建設中の場合は、建物が完成する時期を、完成済みの場合は建築された年月を表示しています。情報更新日
今回情報更新日 2026/01/21 次回情報更新日 2026/02/04
周辺の物件情報












お問合せ
資料請求
来場予約
資料請求
来場予約
電話する




